Type
Bien immobilierTarif
122 000 €Chambres
3Salles de bain
0Vente Maison de campagne 4 pièces
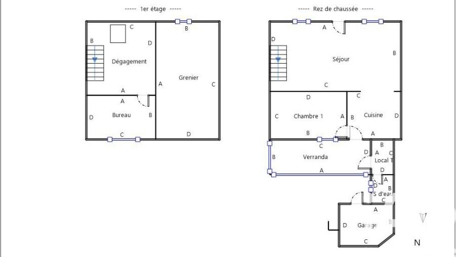
Iad France - Bruno Papin vous propose : ANCIENNE MAISON DE VILLE REFAITE - ENTRE JOIGNY ET AUXERRE - LA BOURGOGNE - A MOINS DE 2 HEURES DE PARIS - Saint-Aubin Châteauneuf 89110 ' le Val D'ocre' Maison de campagne en plein centre et coeur de ville. + CALME SANS VIS A VIS + - La maison en RDC de 79 m² habitable comprend : une entrée, une pièce de vie avec une cuisine, une chambre, une salle d'eau avec wc, une chaudière avec granulée, une remise atelier, une cour pouvant accueillir des véhicules, une véranda, un garage. - A l'étage, un couloir, une chambre donnant sur la terrasse sur l'entrée principale, dégagement et grenier, une partie aménageable mais à rénover. - Un terrain proche de la maison constructible ou un potager à prévoir, puit sur le terrain. - Endroit calme et proche des axes routiers et autoroute de l'A6 et de L'A5. - Chaudière à granulé + électricité- PROCHE DES COMMERCES Aillant- sur -Tholon et Chassy et Toucy (super marché le samedi matin et rapport qualité prix excellent) Joigny et Auxerre. LIBRE ET DISPONIBLE 7 / 7JOURS -MEME LE DIMANCHE- Honoraires d'agence à la charge du vendeur. Information d'affichage énergétique sur ce bien : classe ENERGIE D indice 223 et classe CLIMAT B indice 6. Les informations sur les risques auxquels ce bien est exposé, y compris l'obligation légale de débroussaillement, sont disponibles sur le site Géorisques : http://www.georisques.gouv.fr. La présente annonce immobilière a été rédigée sous la responsabilité éditoriale de M Bruno Papin mandataire indépendant en immobilier (sans détention de fonds), agent commercial de la SAS I@D France immatriculé au RSAC de BOBIGNY sous le numéro 827638818, titulaire de la carte de démarchage immobilier pour le compte de la société I@D France SAS.
Ce mois
Cette annonce est récente
À proximité
Recherche des commodités à proximité...
Détails de l'annonce
Localisation
Ville
Le Val d'Ocre
Pays
FR
Diagnostics / Énergie
Diagnostic DPE
223
Diagnostic GES
6
Chauffage et diagnostics
Diagnostic de performance énergétique (DPE)
a
b
c
d
e
f
g
Indice d'émission de gaz à effet de serre (GES)
a
b
c
d
e
f
g
