Type
Bien immobilierTarif
270 000 €Chambres
3Salles de bain
0Vente Maison/villa 4 pièces
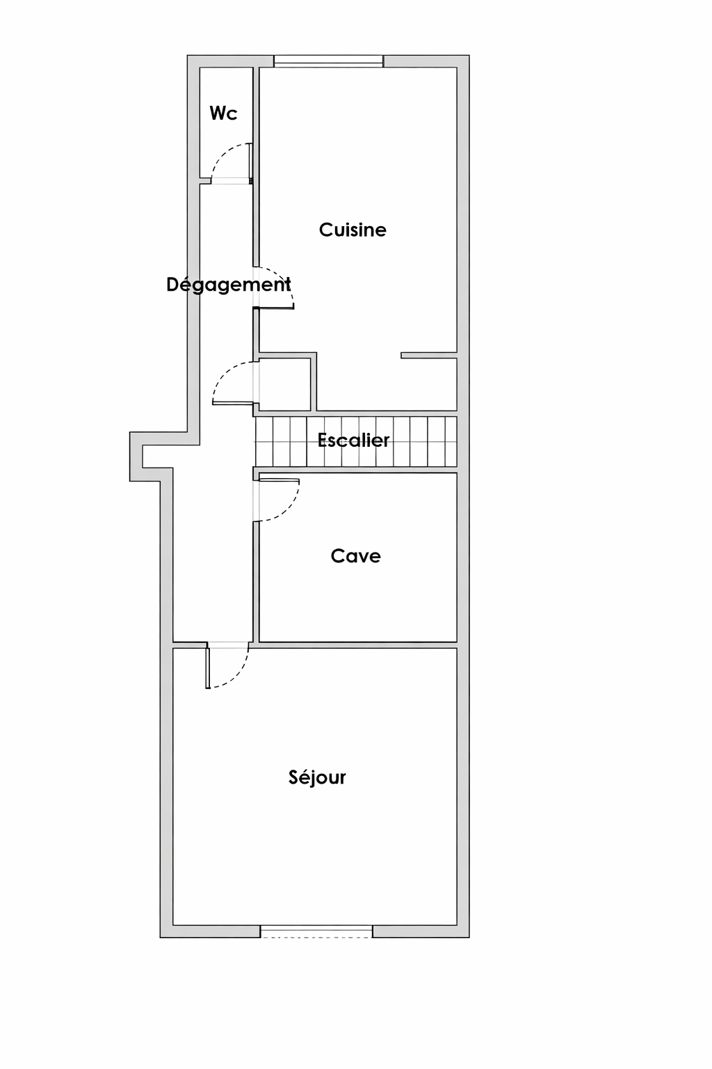
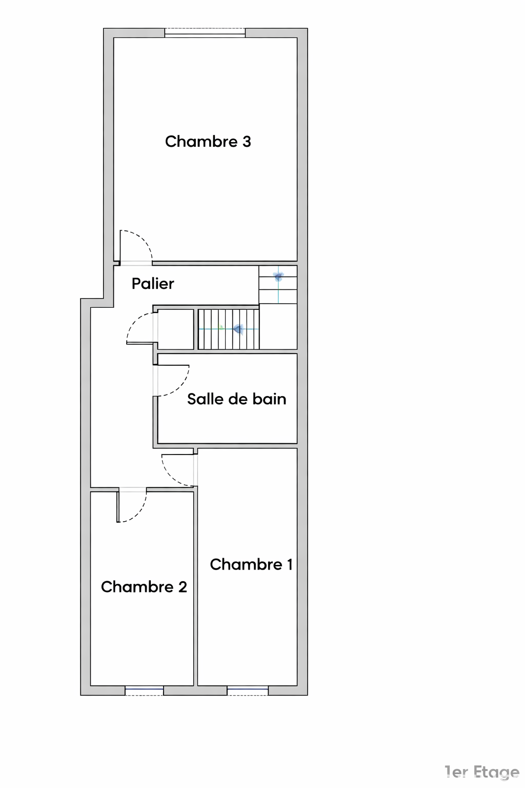
Iad France - Erwan Huré vous propose : MAISON 114 m² – 3 CHAMBRES – JARDIN – GARAGE – FORT POTENTIEL - Bouguenais – environnement calme Venez découvrir cette maison individuelle d’environ 114 m², offrant une base solide et un beau potentiel d’aménagement. Vous profitez d’une distribution fonctionnelle avec : une cuisine indépendante un séjour lumineux donnant sur le jardin un espace cave / stockage pratique un WC en rez-de-chaussée À l’étage : 3 chambres une salle de bain un palier desservant l’ensemble Extérieurs & annexes : Jardin agréable avec potentiel d’aménagement Garage non attenant Caractéristiques techniques : Surface : 114 m² Chauffage : chaudière gaz récente (2020) Toiture refaite en 2017 Menuiseries double vitrage VMC en place DPE : D À savoir Les + qui font la différence : Toiture récente Chauffage récent 3 chambres Garage Jardin Potentiel de valorisation Idéal pour Famille Premier achat Projet avec valorisation À visiter rapidement. Certaines photos peuvent présenter des propositions d’aménagement (home staging virtuel – images générées par IA non contractuelles) Honoraires d'agence à la charge du vendeur. Information d'affichage énergétique sur ce bien : classe ENERGIE D indice 150 et classe CLIMAT D indice 31. Les informations sur les risques auxquels ce bien est exposé, y compris l'obligation légale de débroussaillement, sont disponibles sur le site Géorisques : http://www.georisques.gouv.fr. La présente annonce immobilière a été rédigée sous la responsabilité éditoriale de M Erwan Huré mandataire indépendant en immobilier (sans détention de fonds), agent commercial de la SAS I@D France immatriculé au RSAC de LA ROCHE SUR YON sous le numéro 853490688, titulaire de la carte de démarchage immobilier pour le compte de la société I@D France SAS.
Cette semaine
Cette annonce est récente
À proximité
Recherche des commodités à proximité...
Détails de l'annonce
Localisation
Ville
Bouguenais
Pays
FR
Diagnostics / Énergie
Diagnostic DPE
150
Diagnostic GES
31
Surfaces / Pièces / Composition
Nombre d’étages
2
Chauffage et diagnostics
Diagnostic de performance énergétique (DPE)
a
b
c
d
e
f
g
Indice d'émission de gaz à effet de serre (GES)
a
b
c
d
e
f
g
