Type
Bien immobilierTarif
205 000 €Chambres
2Salles de bain
0Vente Appartement 4 pièces
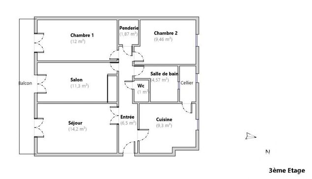
Iad France - Irène Valentin vous propose : Irène VALENTIN vous propose à 5 minutes du PORT DE TOGA et de la PLACE SAINT NICOLAS à BASTIA en Haute Corse un grand appartement de 70 m² (85 m² surface au sol) dans une résidence construite en 1970. L’appartement de 4 pièces est situé au 3ème étage d’un immeuble de 7 niveaux avec ascenseur. Il est composé d’une entrée qui dessert un séjour, une cuisine semi équipée : placards, évier, hotte, chaudière à gaz, un cellier / loggia. Le séjour donne sur une terrasse carrelée de 9.5 m² orientée au Sud Est avec une vue dégagée sur la résidence et au loin, sur la mer. Un couloir mène à un petit salon qui peut faire office de chambre mais dont la cloison peut aussi être abattue pour agrandir le séjour, 1 salle de bains avec un lavabo et un meuble de salle de bains, un bidet, une baignoire, 2 chambres, 1 placard / penderie fermé de 1.86 m² au bout du couloir et des WC séparés. Une CAVE de 6 m² située en rez de chaussée du bâtiment. La résidence dispose d’un PARKING privatif avec accès par bip automatique - Pas de place nominative mais PARKING FACILE - Porte semi blindée - Chaudière à gaz - Chauffage central - Sol carrelé - Simple vitrage - Volets en bois - Radiateurs dans toutes les pièces - RAFRAICHISSEMENT, REMISE AUX NORMES ET TRAVAUX A PREVOIR - Taxes foncières 1 238€ - SITUATION IDÉALE en ville - Résidence calme PROCHE DE TOUTES COMMODITÉS, DES PORTS ET DE LA MER. La presente annonce immobiliere vise 2 lots situés dans une copropriété de 329 lots au total et ne faisant l'objet d'aucune procédure en cours citée à l'article L. 721-1 du code de la construction et de l'habitation. Montant moyen mensuel de charges déclaré par le vendeur : 124.33€ par mois (soit 1492 € annuel). Honoraires d'agence à la charge du vendeur. Information d'affichage énergétique sur ce bien : classe ENERGIE D indice 149 et classe CLIMAT D indice 32. Les informations sur les risques auxquels ce bien est exposé, y compris l'obligation légale de débroussaillement, sont disponibles sur le site Géorisques : http://www.georisques.gouv.fr. La présente annonce immobilière a été rédigée sous la responsabilité éditoriale de Mme Irène Valentin mandataire indépendant en immobilier (sans détention de fonds), agent commercial de la SAS I@D France immatriculé au RSAC de BASTIA sous le numéro 890291669, titulaire de la carte de démarchage immobilier pour le compte de la société I@D France SAS.
Cette semaine
Cette annonce est récente
À proximité
Recherche des commodités à proximité...
Détails de l'annonce
Localisation
Ville
Bastia
Pays
FR
Diagnostics / Énergie
Diagnostic DPE
149
Diagnostic GES
32
Surfaces / Pièces / Composition
Nombre d’étages
7
Étage
3
Chauffage et diagnostics
Diagnostic de performance énergétique (DPE)
a
b
c
d
e
f
g
Indice d'émission de gaz à effet de serre (GES)
a
b
c
d
e
f
g
