Type
Bien immobilierTarif
98 900 €Chambres
4Salles de bain
0Vente Maison/villa 5 pièces
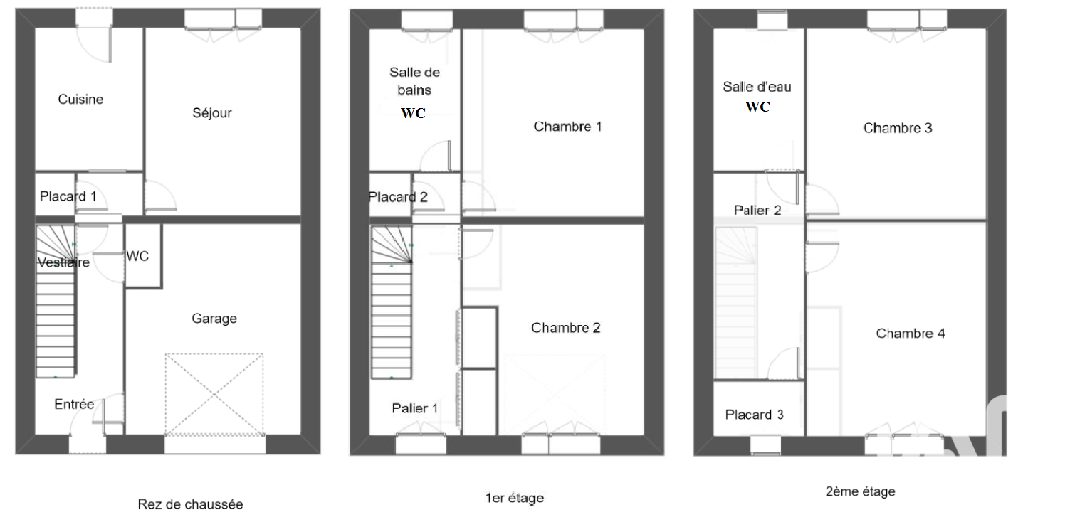
Iad France - Stéphane Grandrie vous propose : Pour investisseurs ! Maison de ville de 110 m², 5 pièces principales comprenant trois niveaux. Au rez-de chaussée se trouve le séjour, la cuisine, les toilettes et un placard. Au premier étage, un dégagement dessert deux belles chambres, une salle de bains avec toilettes, des placards. Au second étage, vous trouverez également deux belles chambres, une salle d'eau avec toilettes et un placard. Un garage et un atelier complètent ce bien La maison est louée 800 € par mois. Le bail de location court jusqu'en Octobre 2026. Le congé n'a pas encore été donné aux locataires. Honoraires d'agence à la charge du vendeur. Information d'affichage énergétique sur ce bien : classe ENERGIE D indice 160 et classe CLIMAT D indice 33. Les informations sur les risques auxquels ce bien est exposé, y compris l'obligation légale de débroussaillement, sont disponibles sur le site Géorisques : http://www.georisques.gouv.fr. La présente annonce immobilière a été rédigée sous la responsabilité éditoriale de M Stéphane Grandrie mandataire indépendant en immobilier (sans détention de fonds), agent commercial de la SAS I@D France immatriculé au RSAC de caean sous le numéro 889218590, titulaire de la carte de démarchage immobilier pour le compte de la société I@D France SAS.
À proximité
Recherche des commodités à proximité...
Détails de l'annonce
Localisation
Ville
Condé-en-Normandie
Pays
FR
Diagnostics / Énergie
Diagnostic DPE
160
Diagnostic GES
33
Surfaces / Pièces / Composition
Nombre d’étages
3
Chauffage et diagnostics
Diagnostic de performance énergétique (DPE)
a
b
c
d
e
f
g
Indice d'émission de gaz à effet de serre (GES)
a
b
c
d
e
f
g
