Type
Bien immobilierTarif
835 000 €Chambres
3Salles de bain
0Vente Maison traditionnelle 6 pièces
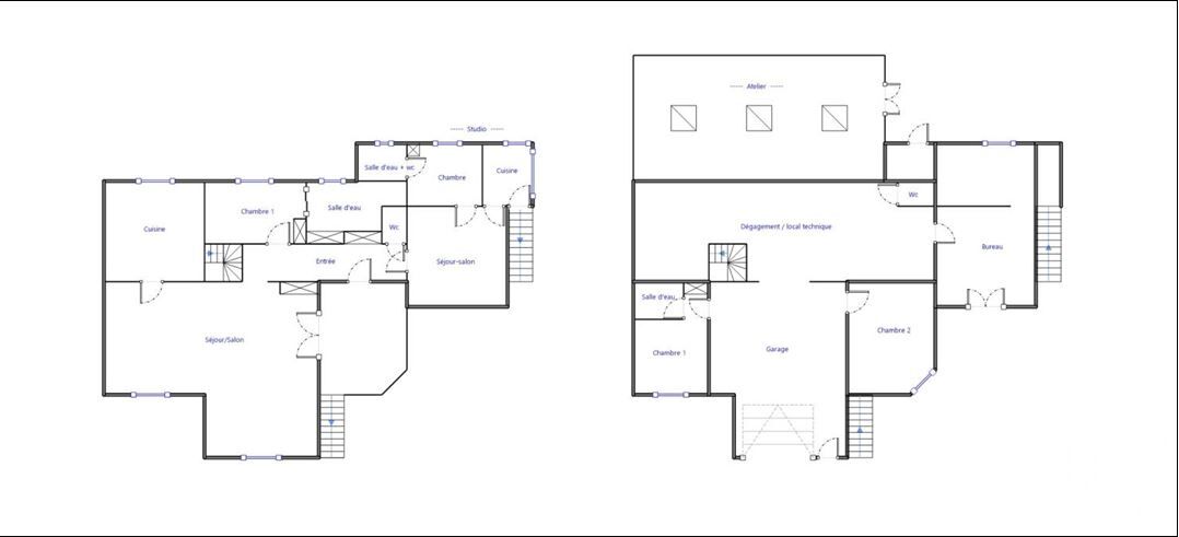
Iad France - Mathieu Vignaud vous propose : * Maison Traditionnelle de Caractère à Arcachon - Charme et Confort Assurés * Découvrez cette magnifique maison traditionnelle située à Arcachon, offrant à ses habitants un cadre de vie idyllique. Cette demeure de 168 m² saura vous séduire par son charme authentique et ses magnifiques volumes * Des Espaces de Vie Spacieux et Lumineux * La maison se compose de 3 chambres spacieuses, idéales pour accueillir une famille. Une cuisine équipée vous permettra de concocter de délicieux repas en toute simplicité. Profitez également d'une terrasse pour des moments de détente en plein air. * Un Ecrin de Verdure * Le jardin arboré de 827 m² vous invite à la sérénité et à la tranquillité. Parfait pour des moments de convivialité en famille ou entre amis. Laissez-vous charmer par la beauté de ce jardin paisible. * Un Garage pour Votre Véhicule * Pour votre confort, un garage est mis à votre disposition, assurant la sécurité de votre véhicule. * Emplacement Idéal * Idéalement située dans un quartier prisé d'Arcachon, cette maison vous offre un cadre de vie privilégié proche des commodités, des écoles et des transports en commun. * Une Opportunité à Ne Pas Manquer * Cette maison vous séduira par son charme, son confort et sa localisation, atouts qui en font un bien rare sur le marché. N'attendez plus pour visiter ce bijou architectural et laissez-vous séduire par son ambiance chaleureuse. Contactez-nous dès maintenant pour organiser une visite ! Honoraires d'agence à la charge du vendeur. Information d'affichage énergétique sur ce bien : classe ENERGIE D indice 206 et classe CLIMAT C indice 28. Les informations sur les risques auxquels ce bien est exposé, y compris l'obligation légale de débroussaillement, sont disponibles sur le site Géorisques : http://www.georisques.gouv.fr. La présente annonce immobilière a été rédigée sous la responsabilité éditoriale de M Mathieu Vignaud mandataire indépendant en immobilier (sans détention de fonds), agent commercial de la SAS I@D France immatriculé au RSAC de Bordeaux sous le numéro 914524400, titulaire de la carte de démarchage immobilier pour le compte de la société I@D France SAS.
Ce mois
Cette annonce est récente
À proximité
Recherche des commodités à proximité...
Détails de l'annonce
Localisation
Ville
Arcachon
Pays
FR
Diagnostics / Énergie
Diagnostic DPE
206
Diagnostic GES
28
Surfaces / Pièces / Composition
Nombre d’étages
2
Chauffage et diagnostics
Diagnostic de performance énergétique (DPE)
a
b
c
d
e
f
g
Indice d'émission de gaz à effet de serre (GES)
a
b
c
d
e
f
g
