Type
Bien immobilierTarif
150 000 €Chambres
0Salles de bain
0Vente Appartement 2 pièces
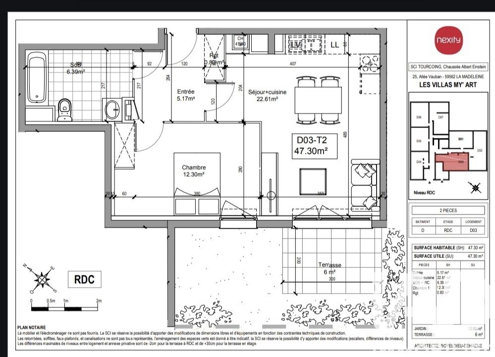
Iad France - Yann BOUREZ vous propose : T2 idéalement situé à Tourcoing (Chaussée Albert Einstein) secteur ma campagne, à 5 minutes du Tramway à pieds. Cet appartement de 47 m² en rez-de-jardin saura vous charmer par sa fonctionnalité et sa situation. Un hall d'entrée dessert une chambre de plus de 12 m², une salle de bain et une pièce de vie de près de 30 m². Une terrasse de 6 m² agrémentée d'un petit extérieur de 12 m² finiront de vous charmer. Une place de parking sécurisée en sous sol supplémentaire. CC gaz, hall d'entrée sécurisée, construction de 2020 La presente annonce immobiliere vise 2 lots situés dans une copropriété de 40 lots au total et ne faisant l'objet d'aucune procédure en cours citée à l'article L. 721-1 du code de la construction et de l'habitation. Montant moyen mensuel de charges déclaré par le vendeur : 100€ par mois (soit 1200 € annuel). Honoraires d'agence à la charge du vendeur. Information d'affichage énergétique sur ce bien : classe ENERGIE C indice 71 et classe CLIMAT C indice 13. Les informations sur les risques auxquels ce bien est exposé, y compris l'obligation légale de débroussaillement, sont disponibles sur le site Géorisques : http://www.georisques.gouv.fr. La présente annonce immobilière a été rédigée sous la responsabilité éditoriale de M Yann BOUREZ mandataire indépendant en immobilier (sans détention de fonds), agent commercial de la SAS I@D France immatriculé au RSAC de Tourcoing sous le numéro 889543385, titulaire de la carte de démarchage immobilier pour le compte de la société I@D France SAS.
Cette semaine
Cette annonce est récente
À proximité
Recherche des commodités à proximité...
Détails de l'annonce
Localisation
Ville
Tourcoing
Pays
FR
Diagnostics / Énergie
Diagnostic DPE
71
Diagnostic GES
13
Surfaces / Pièces / Composition
Nombre d’étages
3
Chauffage et diagnostics
Diagnostic de performance énergétique (DPE)
a
b
c
d
e
f
g
Indice d'émission de gaz à effet de serre (GES)
a
b
c
d
e
f
g
