Type
Bien immobilierTarif
278 000 €Chambres
3Salles de bain
0Vente Maison/villa 4 pièces
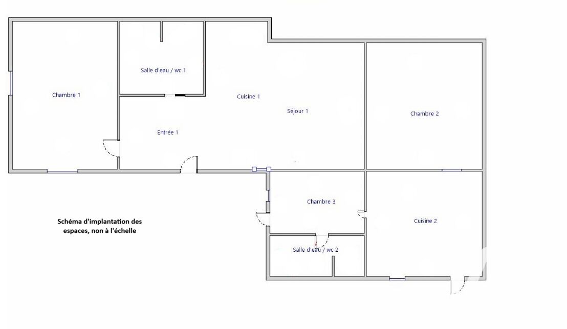
Iad France - Julien Formantin vous propose : EXCLUSIVITE MAISON de 60 m² sur une parcelle de 300 m² Au coeur d'Esbly Val d'Europe, secteur calme et très recherché, proche des commerces et des écoles Un bien avec beaucoup de potentiel pour une famille ou un investisseur (location saisonnière ou classique) Actuellement séparé en deux avec accès indépendants pour de la location saisonnière avec une très bonne rentabilité. Ce bien peut retrouver facilement sa configuration initiale pour une maison familiale Plain-pied 3 chambres 2 salles d’eau avec WC 2 cuisines ouvertes sur les séjours Jardin cloturé, exposé SUD, au calme Prestations : bon DPE, pas de travaux, chauffage électrique, double vitrage, volets roulants. Hors zone inondable Transports : RER A Val d'Europe / MLV, Transilien ligne P, Bus à quelques pas 30 min de Paris Contactez moi, pour une visite de ce bien rare sur le secteur ! Honoraires d'agence à la charge du vendeur. Information d'affichage énergétique sur ce bien : classe ENERGIE C indice 177 et classe CLIMAT B indice 6. Les informations sur les risques auxquels ce bien est exposé, y compris l'obligation légale de débroussaillement, sont disponibles sur le site Géorisques : http://www.georisques.gouv.fr. La présente annonce immobilière a été rédigée sous la responsabilité éditoriale de M Julien Formantin mandataire indépendant en immobilier (sans détention de fonds), agent commercial de la SAS I@D France immatriculé au RSAC de Meaux sous le numéro 903848927, titulaire de la carte de démarchage immobilier pour le compte de la société I@D France SAS.
Ce mois
Cette annonce est récente
À proximité
Recherche des commodités à proximité...
Détails de l'annonce
Localisation
Ville
Esbly
Pays
FR
Diagnostics / Énergie
Diagnostic DPE
177
Diagnostic GES
6
Chauffage et diagnostics
Diagnostic de performance énergétique (DPE)
a
b
c
d
e
f
g
Indice d'émission de gaz à effet de serre (GES)
a
b
c
d
e
f
g
