Type
Bien immobilierTarif
121 200 €Chambres
0Salles de bain
0Vente Appartement 1 pièce
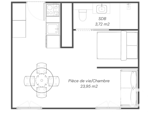
Iad France - Irwin Houssin vous propose : T1 bis rénové – Idéal investissement – Centre de Morlaix À proximité immédiate du centre-ville, dans le secteur recherché de la Rue Villeneuve, découvrez ce T1 bis de 27,67 m², situé au 1er étage d’un immeuble comprenant 6 lots d'habitation. - Emplacement stratégique : À quelques minutes du Port de Morlaix et proche de l’IUT de Morlaix, idéal pour la location étudiante ou jeune actif. - Bien vendu entièrement rénové : Actuellement non habitable, l’appartement sera livré clé en main après travaux. Acquisition sur plan et projections – travaux réalisés après signature d'un avant contrat. Espace extérieure et parking. -Éligible au dispositif fiscal Denormandie (sous conditions), permettant de bénéficier d’un avantage fiscal attractif dans le cadre d’un investissement locatif. ✔ Idéal premier investissement ✔ Optimisation fiscale ✔ Placement patrimonial en centre-ville Frais de notaire réduits, calculés sur le foncier. La presente annonce immobiliere vise 1 lot situé dans une copropriété de 6 lots au total et ne faisant l'objet d'aucune procédure en cours citée à l'article L. 721-1 du code de la construction et de l'habitation. Montant moyen mensuel de charges déclaré par le vendeur : 0€ par mois (soit 0 € annuel). Honoraires d'agence à la charge de l'acquéreur. Prix honoraires inclus : 121200 euros. Prix hors honoraires : 117200 euros. Honoraires TTC à la charge de l'acquéreur (3,41% du prix du bien hors honoraires) : 4000 euros. Bien non soumis au DPE. Les informations sur les risques auxquels ce bien est exposé, y compris l'obligation légale de débroussaillement, sont disponibles sur le site Géorisques : http://www.georisques.gouv.fr. La présente annonce immobilière a été rédigée sous la responsabilité éditoriale de M Irwin Houssin mandataire indépendant en immobilier (sans détention de fonds), agent commercial de la SAS I@D France immatriculé au RSAC de Brest sous le numéro 493985055, titulaire de la carte de démarchage immobilier pour le compte de la société I@D France SAS.
Ce mois
Cette annonce est récente
À proximité
Recherche des commodités à proximité...
Détails de l'annonce
Localisation
Ville
Morlaix
Pays
FR
Finances / Mandat / Références
Honoraires
4 €
Surfaces / Pièces / Composition
Nombre d’étages
2
Chauffage et diagnostics
Diagnostic de performance énergétique (DPE)
a
b
c
d
e
f
g
Indice d'émission de gaz à effet de serre (GES)
a
b
c
d
e
f
g
