Trouver...

Language: FR

Devise: EUR

Vente Maison/villa 4 pièces

Publié le 14 November 2025
Type
Bien immobilier
Tarif
367 000 €
Chambres
3
Salles de bain
0

Vente Maison/villa 4 pièces

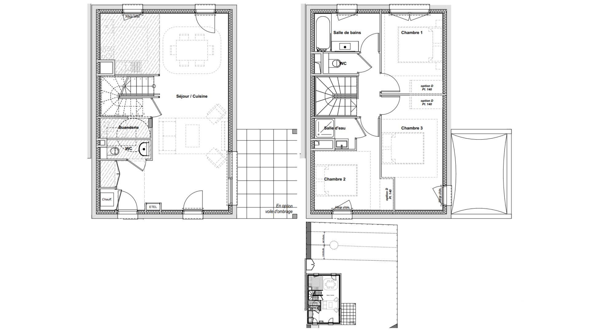
Iad France - Sarah Rozière (06 99 86 19 42) vous propose : Maison T4 avec jardin à Riom. Située au cOEur de l’écoquartier de l’Ambène, dans un environnement moderne, calme et verdoyant, la résidence Les Rives de l’Ambène conjugue élégance architecturale et confort de vie. À proximité des commerces, des transports, des écoles et des espaces naturels, cette adresse offre un cadre paisible et qualitatif à seulement quelques minutes du centre de Riom et de Clermont-Ferrand. Disponible 2027. Une maison raffinée : Cette maison 4 pièces de 90 m² environ habitables se prolonge par une terrasse d’environ 11 m² environ ainsi qu’un jardin de 243 m² environ. - Séjour / cuisine de 40 m² environ. - Trois chambres confortables. - Salle de bains et salle d’eau modernes. - Buanderie et rangements. - Annexes incluses : parkings extérieurs. De belles prestations : - Chauffage conforme aux normes en vigueur, ventilation contrôlée et isolation performante. - Menuiseries extérieures double vitrage isolant, volets roulants. - Résidence sécurisée avec contrôle d’accès et espaces extérieurs paysagers. L’art de vivre aux Rives de l’Ambène : - À deux pas des commerces et services du quartier. - Environnement résidentiel recherché, idéal pour les familles. - À proximité immédiate des axes majeurs vers Clermont-Ferrand. - Accès rapide aux écoles, parcs, transports et zones d’activités. N’hésitez pas à me contacter pour plus d’informations ou pour un accompagnement sur mesure. Honoraires d’agence à la charge du vendeur. Bien non soumis au DPE. Les informations sur les risques auxquels ce bien est exposé sont disponibles sur le site Géorisques : www.georisques.gouv.fr. La présente annonce immobilière a été rédigée sous la responsabilité éditoriale de Mlle Sarah Rozière EI (ID 83696), mandataire indépendant en immobilier (sans détention de fonds), agent commercial de la SAS I@D France immatriculé au RSAC de Clermont-Ferrand sous le numéro 978616993, titulaire de la carte de démarchage immobilier pour le compte de la société I@D France SAS. Retrouvez tous nos biens sur notre site internet. www.iadfrance.fr.

À proximité

Recherche des commodités à proximité...

Détails de l'annonce

Localisation

Ville
Riom
Pays
FR

Chauffage et diagnostics

Diagnostic de performance énergétique (DPE)
a
b
c
d
e
f
g
Indice d'émission de gaz à effet de serre (GES)
a
b
c
d
e
f
g
Rappelez-moi