Type
Bien immobilierTarif
229 000 €Chambres
1Salles de bain
0Vente appartement 2 pièces
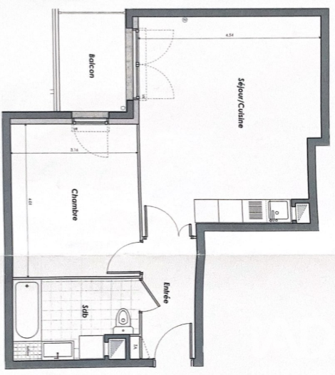
Iad France - Loïc Razafindramboa vous propose : Appartement 2 pièces récent avec balcon et parking Dans une résidence récente de 2019, découvrez ce bel appartement 2 pièces au 1er étage avec ascenseur alliant confort et fonctionnalité. Il se compose d’une entrée, d’une salle de bain, d’une chambre de 12 m² avec accès direct au balcon, ainsi que d’une cuisine ouverte sur le séjour, offrant un espace de vie lumineux et convivial, lui aussi avec accès balcon. Un parking en sous-sol complète ce bien. ✔ Résidence récente ✔ Double accès balcon séjour / chambre ✔ Stationnement sécurisé ✔ Proximité commerces, transports et axes routiers Idéal premier achat ou investissement. La presente annonce immobiliere vise 2 lots situés dans une copropriété de 169 lots au total et ne faisant l'objet d'aucune procédure en cours citée à l'article L. 721-1 du code de la construction et de l'habitation. Montant moyen mensuel de charges déclaré par le vendeur : 174.35€ par mois (soit 2092.2 € annuel). Honoraires d'agence à la charge du vendeur. Information d'affichage énergétique sur ce bien : classe ENERGIE C indice 62 et classe CLIMAT C indice 11. Les informations sur les risques auxquels ce bien est exposé, y compris l'obligation légale de débroussaillement, sont disponibles sur le site Géorisques : http://www.georisques.gouv.fr. La présente annonce immobilière a été rédigée sous la responsabilité éditoriale de M Loïc Razafindramboa mandataire indépendant en immobilier (sans détention de fonds), agent commercial de la SAS I@D France immatriculé au RSAC de meaux sous le numéro 983686957, titulaire de la carte de démarchage immobilier pour le compte de la société I@D France SAS.
Ce mois
Cette annonce est récente
À proximité
Recherche des commodités à proximité...
Détails de l'annonce
Localisation
Ville
Montévrain
Pays
FR
Diagnostics / Énergie
Diagnostic DPE
62
Diagnostic GES
11
Surfaces / Pièces / Composition
Nombre d’étages
4
Chauffage et diagnostics
Diagnostic de performance énergétique (DPE)
a
b
c
d
e
f
g
Indice d'émission de gaz à effet de serre (GES)
a
b
c
d
e
f
g
