Type
Bien immobilierTarif
174 000 €Chambres
2Salles de bain
0Vente Maison/villa 4 pièces
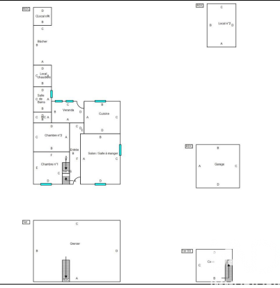
Iad France - Cindy Berthe vous propose : ROIGLISE, ravissante maison, 101 m² de plain-pied avec le charme de la brique, nichée sur 1 481 m²de terrain. Les points forts qui vont vous séduire : - Vie de Plain-Pied : Une entrée accueillante dessert un double séjour (salon / salle à manger) lumineux, une cuisine séparée, deux chambres spacieuses, une salle de bains et un WC indépendant. - Envie de plus d'espace ? Un grenier aménageable de 43 m² n'attend que vos idées pour accueillir deux chambres supplémentaires ou une suite parentale. - Un grand jardin arboré, sans vis-à-vis, idéal pour vos soirées d'été ou pour les jeux des enfants. Le 'Plus' Pratique : Un garage pour votre véhicule, une cave saine pour vos crus préférés et, surtout, la fibre optique déjà installée pour vos besoins en télétravail ou loisirs numériques. Et Parce qu'il est parfois difficile d'imaginer le résultat final, je vous ai préparé des visuels de mise en situation (Home Staging virtuel). Découvrez comment transformer ces beaux volumes en un intérieur ultra-contemporain tout en gardant le charme de la brique. Une maison saine, lumineuse et évolutive sur un terrain généreux. C'est le compromis parfait entre la tranquillité de la campagne et la connectivité moderne. Ne laissez pas passer cette opportunité ! Parce qu'une visite vaut mieux qu'un long discours, contactez-moi dès aujourd'hui pour découvrir votre futur chez-vous. Honoraires d'agence à la charge du vendeur. Information d'affichage énergétique sur ce bien : classe ENERGIE G indice 419 et classe CLIMAT G indice 120. Les informations sur les risques auxquels ce bien est exposé, y compris l'obligation légale de débroussaillement, sont disponibles sur le site Géorisques : http://www.georisques.gouv.fr. La présente annonce immobilière a été rédigée sous la responsabilité éditoriale de Mme Cindy Berthe mandataire indépendant en immobilier (sans détention de fonds), agent commercial de la SAS I@D France immatriculé au RSAC de AMIENS sous le numéro 949654354, titulaire de la carte de démarchage immobilier pour le compte de la société I@D France SAS.
À proximité
Recherche des commodités à proximité...
Détails de l'annonce
Localisation
Ville
Roiglise
Pays
FR
Diagnostics / Énergie
Diagnostic DPE
419
Diagnostic GES
120
Chauffage et diagnostics
Diagnostic de performance énergétique (DPE)
a
b
c
d
e
f
g
Indice d'émission de gaz à effet de serre (GES)
a
b
c
d
e
f
g
