Type
Bien immobilierTarif
198 000 €Chambres
2Salles de bain
0Vente Duplex 3 pièces
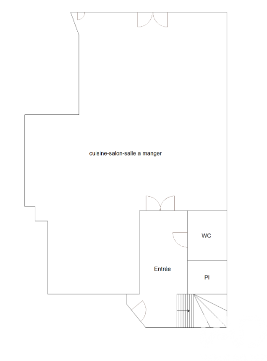
Iad France - Julien Pepe vous propose : Charmant duplex meublé 3 pièces – 72 m² – Secteur Place Luton À seulement 10 minutes du centre-ville, dans un secteur recherché proche de la Place Luton, découvrez ce joli duplex de 72 m² situé au 2ᵉ étage d’une résidence agréable. Ce bien lumineux se compose, au rez-de-chaussée, d’un beau séjour ouvert sur une cuisine équipée, offrant un espace de vie convivial et fonctionnel. Vous y trouverez également un WC ainsi qu’un placard sous escalier optimisant le rangement. À l’étage, un couloir avec rangements dessert deux chambres lumineuses, un cagibi ainsi qu’une salle d’eau avec WC. Ce duplex est vendu entièrement meublé, idéal pour un investissement locatif ou une installation immédiate sans travaux. Une place de parking complète ce bien. - Chauffage électrique. - Volets roulants. - Ascenseur À visiter sans tarder ! La presente annonce immobiliere vise 3 lots situés dans une copropriété de 52 lots au total et ne faisant l'objet d'aucune procédure en cours citée à l'article L. 721-1 du code de la construction et de l'habitation. Montant moyen mensuel de charges déclaré par le vendeur : 120€ par mois (soit 1440 € annuel). Honoraires d'agence à la charge du vendeur. Information d'affichage énergétique sur ce bien : classe ENERGIE C indice 129 et classe CLIMAT A indice 4. Les informations sur les risques auxquels ce bien est exposé, y compris l'obligation légale de débroussaillement, sont disponibles sur le site Géorisques : http://www.georisques.gouv.fr. La présente annonce immobilière a été rédigée sous la responsabilité éditoriale de M Julien Pepe mandataire indépendant en immobilier (sans détention de fonds), agent commercial de la SAS I@D France immatriculé au RSAC de SEDAN sous le numéro 949408207, titulaire de la carte de démarchage immobilier pour le compte de la société I@D France SAS.
Cette semaine
Cette annonce est récente
À proximité
Recherche des commodités à proximité...
Détails de l'annonce
Localisation
Ville
Reims
Pays
FR
Diagnostics / Énergie
Diagnostic DPE
129
Diagnostic GES
4
Surfaces / Pièces / Composition
Nombre d’étages
4
Étage
2
Chauffage et diagnostics
Diagnostic de performance énergétique (DPE)
a
b
c
d
e
f
g
Indice d'émission de gaz à effet de serre (GES)
a
b
c
d
e
f
g
