Trouver...

Language: FR

Devise: EUR

Vente Maison de ville 5 pièces

Publié le 14 February 2026
Type
Bien immobilier
Tarif
670 000 €
Chambres
3
Salles de bain
0

Vente Maison de ville 5 pièces

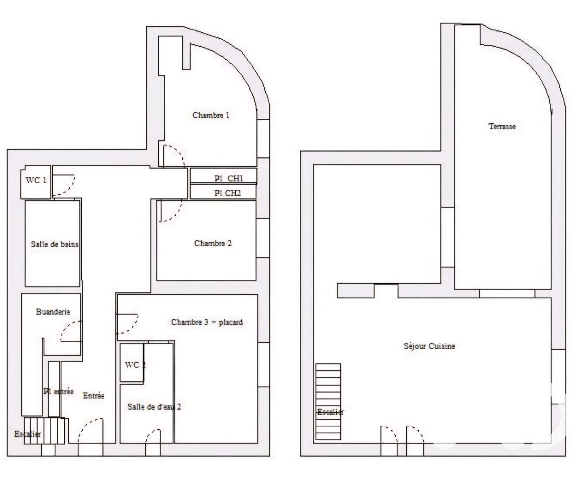
Iad France - Pierre Martini vous propose : Charmante maison de ville rénovée, 3 chambres, terrasse, Montpellier Centre Au cOEur de Montpellier, cette magnifique maison de ville offre un cadre de vie exceptionnel alliant le charme de l'ancien et le confort moderne. Avec ses 3 chambres spacieuses et sa belle terrasse ensoleillée, cette propriété est parfaite pour une famille ou des amateurs d'espace et de luminosité. La maison s'ouvre sur une entrée lumineuse desservant un grand séjour de 63,33 m² offrant un espace de vie convivial et chaleureux. Les surfaces bien agencées offrent un agencement pratique et fonctionnel. La cuisine est à aménager selon vos goûts. Côté nuit, vous trouverez trois belles chambres, chacune offrant un espace de vie confortable et propice à la détente. La salle de bain, la salle d'eau et les deux toilettes apportent un confort supplémentaire à ce bien. La terrasse de 30,25 m² est le lieu idéal pour profiter des beaux jours en famille ou entre amis, tout en bénéficiant d'une exposition sud pour des moments de détente en toute tranquillité. Construite en 1970 et rénovée, cette maison de ville offre un cadre de vie agréable avec des équipements modernes pour un confort optimal. La fibre optique, la ventilation mécanique et le câble TV garantissent une connectivité optimale. Située à proximité des commerces, des transports en commun et des écoles, cette maison bénéficie d'un emplacement idéal pour une vie quotidienne pratique et agréable. Cette maison pleine de charme et de caractère saura vous séduire par son ambiance chaleureuse et ses prestations de qualité. Une visite s'impose pour apprécier pleinement le potentiel de cette propriété unique à Montpellier. Honoraires d'agence à la charge du vendeur. Information d'affichage énergétique sur ce bien : classe ENERGIE A indice 60 et classe CLIMAT A indice 2. Les informations sur les risques auxquels ce bien est exposé, y compris l'obligation légale de débroussaillement, sont disponibles sur le site Géorisques : http://www.georisques.gouv.fr. La présente annonce immobilière a été rédigée sous la responsabilité éditoriale de M Pierre Martini mandataire indépendant en immobilier (sans détention de fonds), agent commercial de la SAS I@D France immatriculé au RSAC de nimes sous le numéro 495023004, titulaire de la carte de démarchage immobilier pour le compte de la société I@D France SAS.

À proximité

Recherche des commodités à proximité...

Détails de l'annonce

Localisation

Ville
Montpellier
Pays
FR

Diagnostics / Énergie

Diagnostic DPE
60
Diagnostic GES
2

Chauffage et diagnostics

Diagnostic de performance énergétique (DPE)
a
b
c
d
e
f
g
Indice d'émission de gaz à effet de serre (GES)
a
b
c
d
e
f
g
Rappelez-moi