Type
Bien immobilierTarif
330 000 €Chambres
1Salles de bain
0Vente Appartement 2 pièces
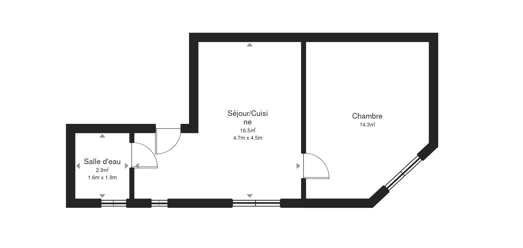
Iad France - Jonathan Khalfa vous propose : Appartement 2 pièces de 35 m² - Paris 20ème - Pelleport / Saint-Fargeau Idéalement situé dans le 20ème arrondissement, à deux pas de la Place Edith Piaf, à proximité des commerces et transports (Metro Ligne 3 et tramway T3B), dans une rue calme. Je vous présente cet appartement TRES LUMINEUX 2 pièces de 34.3 m² Carrez au sein d'un immeuble ancien du XIXème siècle, au 3eme étage sans ascenseur d'une petite copropriété. Il comprend un séjour spacieux et LUMINEUX de par sa vue dégagée avec cuisine ouverte équipée, une grande chambre de 14 m² ainsi qu'une belle salle d'eau avec douche et w. c. Aucune perte d'espace, plan optimisé. Une cave complète ce bien. Les + : - Lumineux - DPE D - Proche transports (T3b et Métro Ligne 3) - Accessible autoroute A3 et périphérique - Pas de perte d'espaces La presente annonce immobiliere vise 1 lot situé dans une copropriété de 7 lots au total et ne faisant l'objet d'aucune procédure en cours citée à l'article L. 721-1 du code de la construction et de l'habitation. Montant moyen mensuel de charges déclaré par le vendeur : 118.95€ par mois (soit 1427.4 € annuel). Honoraires d'agence à la charge du vendeur. Information d'affichage énergétique sur ce bien : classe ENERGIE D indice 239 et classe CLIMAT B indice 9. Les informations sur les risques auxquels ce bien est exposé, y compris l'obligation légale de débroussaillement, sont disponibles sur le site Géorisques : http://www.georisques.gouv.fr. La présente annonce immobilière a été rédigée sous la responsabilité éditoriale de M Jonathan Khalfa mandataire indépendant en immobilier (sans détention de fonds), agent commercial de la SAS I@D France immatriculé au RSAC de Paris sous le numéro 909893380, titulaire de la carte de démarchage immobilier pour le compte de la société I@D France SAS.
Ce mois
Cette annonce est récente
À proximité
Recherche des commodités à proximité...
Détails de l'annonce
Localisation
Ville
Paris
Pays
FR
Diagnostics / Énergie
Diagnostic DPE
239
Diagnostic GES
9
Surfaces / Pièces / Composition
Nombre d’étages
5
Étage
3
Chauffage et diagnostics
Diagnostic de performance énergétique (DPE)
a
b
c
d
e
f
g
Indice d'émission de gaz à effet de serre (GES)
a
b
c
d
e
f
g
