Type
Bien immobilierTarif
125 000 €Chambres
1Salles de bain
0Vente Maison de ville 3 pièces
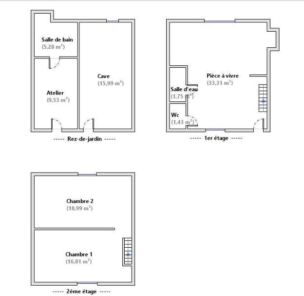
Iad France - Stephanie Garcia vous propose : EN EXCLUSIVITÉ – Maison de village en pierre vendue louée – Centre de Chabeuil À 5 minutes à pied du centre de Chabeuil, au calme d’une petite impasse composée de quatre habitations, maison de ville en pierre de 60 m² habitables (72 m² au sol). Le bien est vendu occupé avec un locataire en place depuis juin 2020. Le bail a été reconduit pour une nouvelle période de trois ans à compter de juin. Loyer actuel : 500 € / mois. La maison ne peut pas être vendue libre. Il s’adresse à un investisseur souhaitant bénéficier de revenus locatifs immédiats tout en intégrant un potentiel d’évolution à moyen terme. Au départ du locataire, plusieurs perspectives pourront être envisagées : – revalorisation du loyer en cohérence avec le marché – réaménagement du rez-de-chaussée – augmentation possible de la surface habitable – valorisation globale du bien Descriptif : Au rez-de-chaussée : Environ 30 m² comprenant un atelier de 9,5 m², une ancienne salle d’eau de 5 m² et une cave saine de 16 m². Arrivées d’eau et électricité existantes. À l’étage : Séjour traversant Cuisine ouverte équipée (plaque induction et hotte) Chauffage électrique Sous combles : Deux espaces nuit pouvant accueillir chambres ou bureau. Éléments techniques : Isolation des combles laine de verre 20 cm Menuiseries bois double vitrage Volets roulants manuels Taxe foncière : 525 € DPE : D Monopropriété sans charges de copropriété Bien situé à proximité immédiate des commerces et commodités. Contactez-moi pour plus d’informations ou organiser une visite. Honoraires d'agence à la charge du vendeur. Information d'affichage énergétique sur ce bien : classe ENERGIE D indice 233 et classe CLIMAT B indice 7. Les informations sur les risques auxquels ce bien est exposé, y compris l'obligation légale de débroussaillement, sont disponibles sur le site Géorisques : http://www.georisques.gouv.fr. La présente annonce immobilière a été rédigée sous la responsabilité éditoriale de Mme Stephanie Garcia mandataire indépendant en immobilier (sans détention de fonds), agent commercial de la SAS I@D France immatriculé au RSAC de ROMANS sous le numéro 524639556, titulaire de la carte de démarchage immobilier pour le compte de la société I@D France SAS.
À proximité
Recherche des commodités à proximité...
Détails de l'annonce
Localisation
Ville
Chabeuil
Pays
FR
Diagnostics / Énergie
Diagnostic DPE
233
Diagnostic GES
7
Surfaces / Pièces / Composition
Nombre d’étages
2
Chauffage et diagnostics
Diagnostic de performance énergétique (DPE)
a
b
c
d
e
f
g
Indice d'émission de gaz à effet de serre (GES)
a
b
c
d
e
f
g
