Type
Bien immobilierTarif
370 900 €Chambres
2Salles de bain
0Vente Appartement 3 pièces
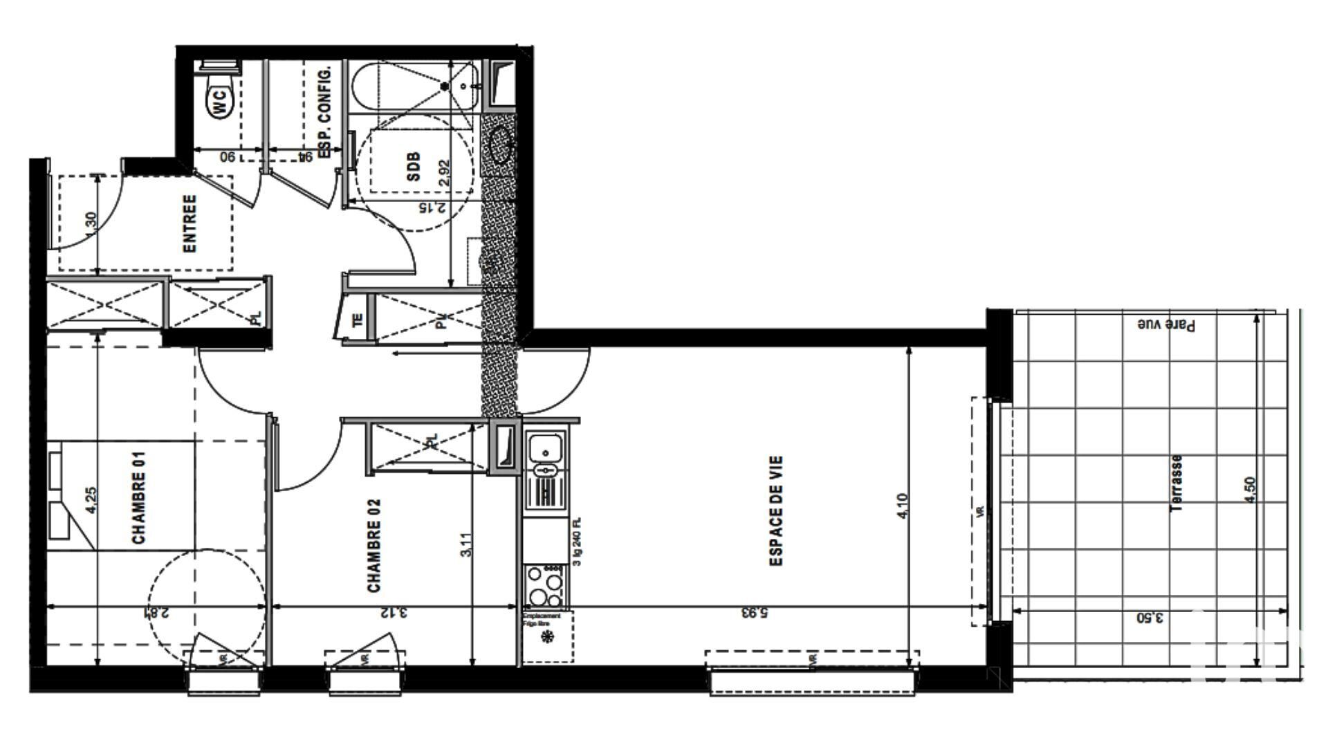
Iad France - Pierre Magerand (06 37 21 92 42) vous propose : Appartement T3 avec Terrasse à Sciez. Au cOEur de la résidence contemporaine Esprit Léman, située avenue de Bonnatrait à Sciez, découvrez une adresse privilégiée entre lac et montagnes. À seulement 1 km du port et de la plage, cette résidence offre un cadre de vie exceptionnel dans le Bas-Chablais, à proximité immédiate de Thonon et avec un accès facilité à Genève. Disponible 2027. Un appartement raffiné : Situé au 1 er étage, orienté Sud-Est, cet appartement T3 de 65 m² environ habitables se prolonge par une terrasse de 16 m² environ. - Séjour / cuisine de 24 m² environ. - Deux belles chambres. - Salle de bains moderne et WC séparés. - Annexes incluses : 1 cellier et 2 parkings. Des belles prestations : - Menuiseries extérieures avec double vitrage isolant. - Volets roulants électriques motorisés. - Chauffage collectif performant avec thermostat programmable. - Résidence sécurisée avec visiophone et ascenseur. Un cadre de vie privilégié : - Port de Sciez et plage à 1 km, activités nautiques et de loisirs à proximité. - Commerces, écoles et marché local accessibles en quelques minutes. - Gare Léman Express à Perrignier (7 min) pour rejoindre rapidement Genève. - Nombreuses activités culturelles et sportives : tennis, VTT, ski, randonnées. N’hésitez pas à me contacter pour plus d’informations ou pour un accompagnement sur mesure. Honoraires d’agence à la charge du vendeur. Bien non soumis au DPE. Les informations sur les risques auxquels ce bien est exposé sont disponibles sur le site Géorisques : www.georisques.gouv.fr. La présente annonce immobilière a été rédigée sous la responsabilité éditoriale de M. Pierre Magerand EI (ID 86098), mandataire indépendant en immobilier (sans détention de fonds), agent commercial de la SAS I@D France immatriculé au RSAC de Cusset sous le numéro 938729175, titulaire de la carte de démarchage immobilier pour le compte de la société I@D France SAS. Retrouvez tous nos biens sur notre site internet. www.iadfrance.fr.
À proximité
Recherche des commodités à proximité...
Détails de l'annonce
Localisation
Ville
Sciez
Pays
FR
Surfaces / Pièces / Composition
Nombre d’étages
3
Chauffage et diagnostics
Diagnostic de performance énergétique (DPE)
a
b
c
d
e
f
g
Indice d'émission de gaz à effet de serre (GES)
a
b
c
d
e
f
g
