Type
Bien immobilierTarif
240 000 €Chambres
3Salles de bain
0Vente Maison de campagne 9 pièces
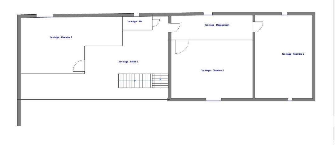
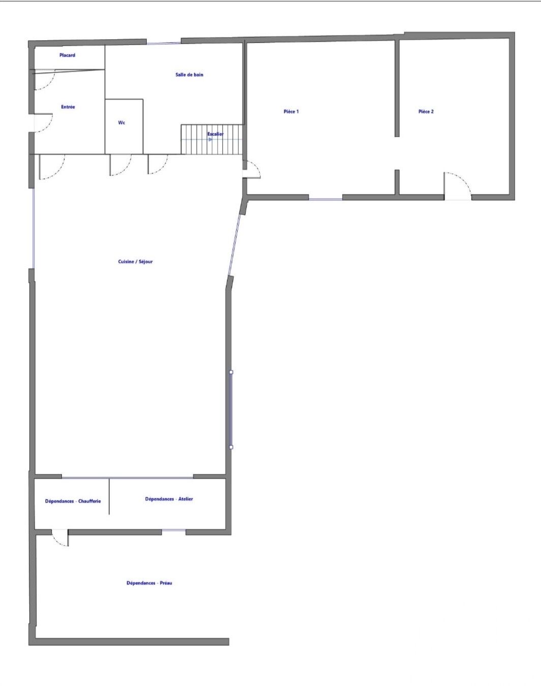
Iad France - Aurélien Gauthier vous propose : Maison de campagne rénovée – Val-de-Comporté Située dans un environnement calme à Val-de-Comporté, cette maison de campagne rénovée développe environ 278 m² habitables répartis sur deux niveaux. Elle offre de beaux volumes et une organisation fonctionnelle, adaptée à une vie de famille ou à un projet nécessitant de l’espace. Au rez-de-chaussée, vous découvrirez une vaste pièce de vie de 81,86 m² comprenant le salon, le séjour et la cuisine ouverte équipée. Ce niveau comprend également une salle de bain de 11,28 m² faisant un WC indépendant, une salle de jeux de 33,55 m² ainsi qu’une pièce supplémentaire de 10,30 m² située dans le prolongement, pouvant être aménagée selon vos besoins. À l’étage, un palier de 19,99 m² avec ces placards de rangement distribue trois chambres de 23,17 m² et 23,03 m². La troisième chambre, qui fait 23,90 m², a sa salle d'eau privatif. L’agencement est fluide et permet une circulation simple entre les différents espaces. Dans la continuité directe du bâtiment principal, une grange attenante d’environ 90 m² au sol complète l’ensemble. Cet espace offre de nombreuses possibilités : stationnement, atelier, stockage ou futur aménagement selon votre projet. Le terrain entoure la maison. Le chauffage central individuel aux granulés assure un confort thermique efficace tout au long de l’année. Honoraires d'agence à la charge du vendeur. Information d'affichage énergétique sur ce bien : classe ENERGIE C indice 140 et classe CLIMAT A indice 4. Les informations sur les risques auxquels ce bien est exposé, y compris l'obligation légale de débroussaillement, sont disponibles sur le site Géorisques : http://www.georisques.gouv.fr. La présente annonce immobilière a été rédigée sous la responsabilité éditoriale de M Aurélien Gauthier mandataire indépendant en immobilier (sans détention de fonds), agent commercial de la SAS I@D France immatriculé au RSAC de Poitiers sous le numéro 984879155, titulaire de la carte de démarchage immobilier pour le compte de la société I@D France SAS.
À proximité
Recherche des commodités à proximité...
Détails de l'annonce
Localisation
Ville
Val-de-Comporté
Pays
FR
Diagnostics / Énergie
Diagnostic DPE
140
Diagnostic GES
4
Surfaces / Pièces / Composition
Nombre d’étages
2
Chauffage et diagnostics
Diagnostic de performance énergétique (DPE)
a
b
c
d
e
f
g
Indice d'émission de gaz à effet de serre (GES)
a
b
c
d
e
f
g
