Type
Bien immobilierTarif
188 000 €Chambres
3Salles de bain
0Vente appartement 4 pièces
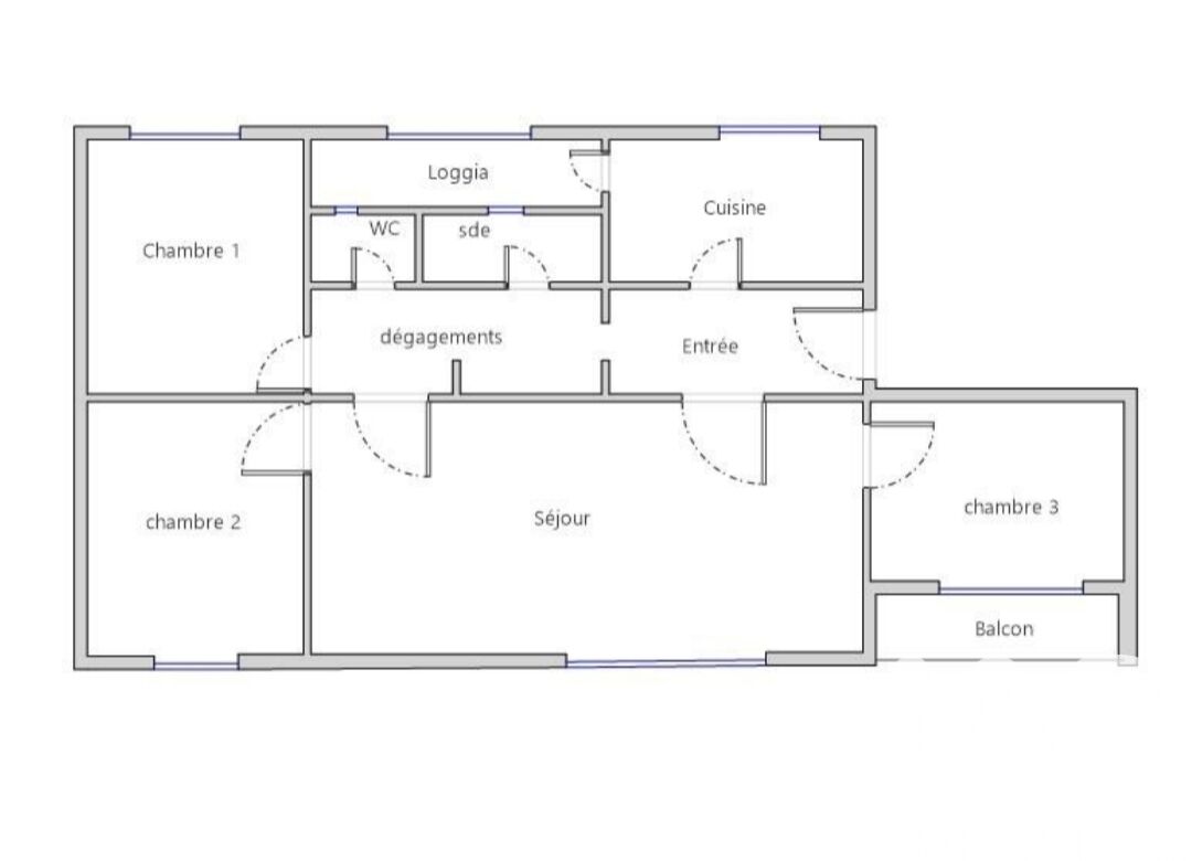
Iad France - Shengkong Chen vous propose : Appartement 4 pièces à rénover avec balcon – Vitry-sur-Seine Situé dans un quartier calme de Vitry-sur-Seine, cet appartement de 4 pièces au 1er étage d’un immeuble de 4 étages offre un beau potentiel après rénovation. Il se compose d’un séjour, de 3 chambres, d’une cuisine, d’une salle de douche avec WC sépare et d’un balcon. Le bien nécessite des travaux, permettant de réinventer les espaces selon vos envies et de créer un appartement confortable et à votre image. L’emplacement est un véritable atout : proche des commerces, écoles et transports, et à seulement 5 minutes à pied de la future ligne 15, dont l’ouverture est prévue cette année, facilitant l’accès à toute la métropole. Une belle opportunité pour un projet de résidence principale ou d’investissement dans un secteur en plein développement. Contactez-nous pour plus d’informations ou organiser une visite. La presente annonce immobiliere vise 2 lots situés dans une copropriété de 233 lots au total et ne faisant l'objet d'aucune procédure en cours citée à l'article L. 721-1 du code de la construction et de l'habitation. Montant moyen mensuel de charges déclaré par le vendeur : 153.33€ par mois (soit 1840 € annuel). Honoraires d'agence à la charge du vendeur. Information d'affichage énergétique sur ce bien : classe ENERGIE F indice 380 et classe CLIMAT F indice 83. Les informations sur les risques auxquels ce bien est exposé, y compris l'obligation légale de débroussaillement, sont disponibles sur le site Géorisques : http://www.georisques.gouv.fr. La présente annonce immobilière a été rédigée sous la responsabilité éditoriale de M Shengkong Chen mandataire indépendant en immobilier (sans détention de fonds), agent commercial de la SAS I@D France immatriculé au RSAC de PARIS sous le numéro 993876135, titulaire de la carte de démarchage immobilier pour le compte de la société I@D France SAS.
Ce mois
Cette annonce est récente
À proximité
Recherche des commodités à proximité...
Détails de l'annonce
Localisation
Ville
Vitry-sur-Seine
Pays
FR
Diagnostics / Énergie
Diagnostic DPE
380
Diagnostic GES
83
Surfaces / Pièces / Composition
Nombre d’étages
4
Chauffage et diagnostics
Diagnostic de performance énergétique (DPE)
a
b
c
d
e
f
g
Indice d'émission de gaz à effet de serre (GES)
a
b
c
d
e
f
g
