Type
Bien immobilierTarif
229 000 €Chambres
3Salles de bain
0Vente Maison/villa 4 pièces
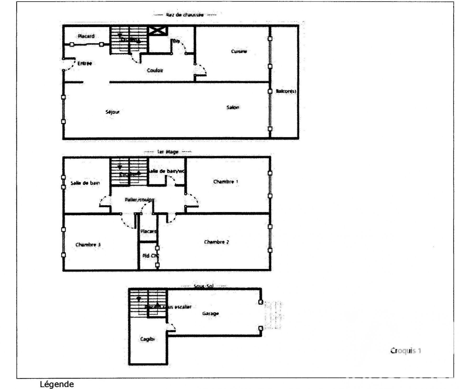
Iad France - Jean-François MAURICE vous propose : Nouveauté * MONTIVILLIERS, Maison de 98 m², 3 chambres, garage * Caractéristiques : Construction : 1980 Superficie : 98 m² Séjour : 30 m² Cuisine : 10 m² 3 chambres (de 10 à 12 m²) 1 Salle de Douche et 1 salle de Bain Foncier : 1980€ DPE C A proximité des commerces, écoles et transports en commun. Venez découvrir cette maison composée au rez-de-chaussée, d'une entrée avec rangements, une pièce de vie lumineuse de 30 m², une cuisine aménagée et un WC. À l'étage, profitez de 3 chambres (de 10 à 12 m²), une salle de bain, des rangements et une salle de douche avec WC. Garage de 15 m² + cellier / atelier en accès direct au logement - Balcon 15 m² - Terrasse 25 m² Baies vitrés en alu double vitrage - Volets roulants en alu - Velux avec volets roulants solaires - Chaudière à condensation Viessmann. Si vous recherchez une maison spacieuse, bien entretenue et proche de toutes les commodités, ne manquez pas cette opportunité ! La presente annonce immobiliere vise 2 lots situés dans une copropriété de 40 lots au total et ne faisant l'objet d'aucune procédure en cours citée à l'article L. 721-1 du code de la construction et de l'habitation. Montant moyen mensuel de charges déclaré par le vendeur : 57€ par mois (soit 684 € annuel). Honoraires d'agence à la charge du vendeur. Information d'affichage énergétique sur ce bien : classe ENERGIE C indice 139 et classe CLIMAT C indice 28. Les informations sur les risques auxquels ce bien est exposé, y compris l'obligation légale de débroussaillement, sont disponibles sur le site Géorisques : http://www.georisques.gouv.fr. La présente annonce immobilière a été rédigée sous la responsabilité éditoriale de M Jean-François MAURICE mandataire indépendant en immobilier (sans détention de fonds), agent commercial de la SAS I@D France immatriculé au RSAC de LE HAVRE sous le numéro 877 579 714, titulaire de la carte de démarchage immobilier pour le compte de la société I@D France SAS.
Ce mois
Cette annonce est récente
À proximité
Recherche des commodités à proximité...
Détails de l'annonce
Localisation
Ville
Montivilliers
Pays
FR
Diagnostics / Énergie
Diagnostic DPE
139
Diagnostic GES
28
Surfaces / Pièces / Composition
Nombre d’étages
2
Chauffage et diagnostics
Diagnostic de performance énergétique (DPE)
a
b
c
d
e
f
g
Indice d'émission de gaz à effet de serre (GES)
a
b
c
d
e
f
g
