Type
Bien immobilierTarif
164 000 €Chambres
2Salles de bain
0Vente Appartement 3 pièces
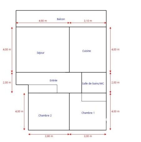
Iad France - Viviane Picquart vous propose : SAINT-HERBLAIN - CHEZINE - BOUVARDIERE - APPARTEMENT T3 A FORT POTENTIEL AVEC GARAGE ET JARDIN PRIVATIF Situé au 1er étage (sans ascenseur) d’une résidence intimiste de seulement 6 logements, cet appartement T3 de 75,6 m² offre un cadre de vie calme, verdoyant et particulièrement recherché. Vous bénéficierez d’un garage fermé ainsi que d’un jardin en jouissance privative, rare sur le secteur. L'entrée, équipée de grands placards, dessert une pièce de vie de près de 20 m² avec cheminée et un balcon filant de 8 m², une grande cuisine de 12 m² (avec possibilité d'ouverture sur le salon), d’une salle de bain avec WC et de 2 grandes chambres avec vue sur le jardin. Des travaux à prévoir notamment au niveau de la cuisine et de la salle de bain pourraient permettre de révéler tout le potentiel de l'appartement aux volumes généreux. SES ATOUTS : Ses faibles charges (.
À proximité
Recherche des commodités à proximité...
Détails de l'annonce
Localisation
Ville
Saint-Herblain
Pays
FR
Diagnostics / Énergie
Diagnostic DPE
271
Diagnostic GES
10
Surfaces / Pièces / Composition
Nombre d’étages
2
Chauffage et diagnostics
Diagnostic de performance énergétique (DPE)
a
b
c
d
e
f
g
Indice d'émission de gaz à effet de serre (GES)
a
b
c
d
e
f
g
