Type
Bien immobilierTarif
499 000 €Chambres
1Salles de bain
0Vente Appartement 2 pièces
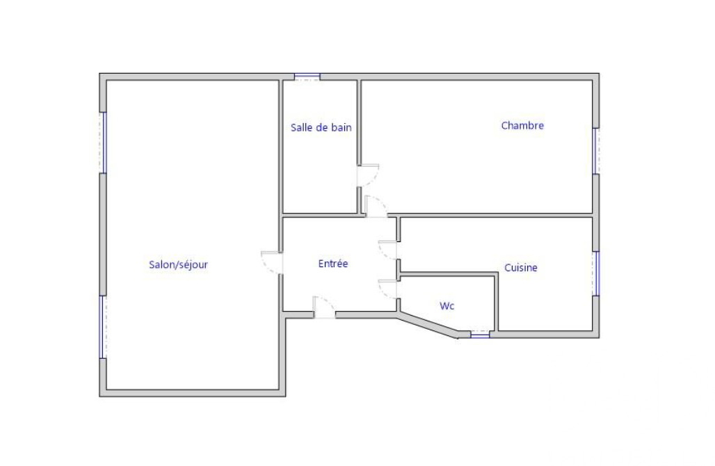
Iad France - Marie-Reine Grosperrin vous propose : * Rue Spontini - Appartement de 54 m² de deux pièces au quatrième étage sans ascenseur * Je vous présente un très bel appartement avec du cachet à rafraichir, qui se compose d'une belle entrée desservant une cuisine, une spacieuse chambre donnant sur une salle de bain, des WC indépendants, un double salon séjour lumineux avec le cachet de l'ancien. Quatrième étage sans ascenseur avec gardien, dans un bel immeuble en pierre de taille de standing. La présente annonce est soumise à la vente Interactive. Prix de départ : 499 000€ La vente interactive est un mode de vente immobilière digitale reposant sur un principe d’enchères en ligne. Elle permet aux acquéreurs de déposer facilement, en ligne, leurs offres d'achat à l'intention du vendeur. Le vendeur peut contresigner en ligne et à tout moment, toute offre d'achat dont le prix et les conditions lui conviennent. Il n'est contraint par aucune offre d'achat, quel que soit le montant de celle-ci. La presente annonce immobiliere vise 2 lots situés dans une copropriété de 73 lots au total et ne faisant l'objet d'aucune procédure en cours citée à l'article L. 721-1 du code de la construction et de l'habitation. Montant moyen mensuel de charges déclaré par le vendeur : 224.23€ par mois (soit 2690.8 € annuel). Honoraires d'agence à la charge du vendeur. Information d'affichage énergétique sur ce bien : classe ENERGIE F indice 415 et classe CLIMAT F indice 91. Les informations sur les risques auxquels ce bien est exposé, y compris l'obligation légale de débroussaillement, sont disponibles sur le site Géorisques : http://www.georisques.gouv.fr. La présente annonce immobilière a été rédigée sous la responsabilité éditoriale de Mme Marie-Reine Grosperrin mandataire indépendant en immobilier (sans détention de fonds), agent commercial de la SAS I@D France immatriculé au RSAC de EVRY sous le numéro 491626495, titulaire de la carte de démarchage immobilier pour le compte de la société I@D France SAS.
À proximité
Recherche des commodités à proximité...
Détails de l'annonce
Localisation
Ville
Paris
Pays
FR
Diagnostics / Énergie
Diagnostic DPE
415
Diagnostic GES
91
Surfaces / Pièces / Composition
Nombre d’étages
5
Étage
4
Chauffage et diagnostics
Diagnostic de performance énergétique (DPE)
a
b
c
d
e
f
g
Indice d'émission de gaz à effet de serre (GES)
a
b
c
d
e
f
g
