Type
Bien immobilierTarif
329 000 €Chambres
2Salles de bain
0Vente Appartement 3 pièces
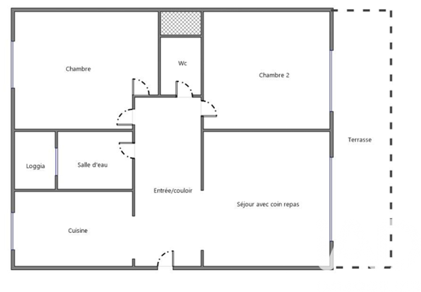
Iad France - Laetitia Gluza vous propose : CO-EXCLUSIVITE CANNES – Secteur Petit Juas / Rue de Bernis – Appartement T3 rénové avec terrasse, cave et parking À seulement 10 minutes à pied du marché Forville, 15 minutes de la Croisette et des plages, et 5 minutes de l’Institut Stanislas, découvrez cet appartement traversant de 58 m² (60,35 m²au sol) situé au 2ᵉ étage d’une résidence sécurisée avec ascenseur, dans un quartier calme et agréable. Entièrement rénové avec goût, il se compose d’une entrée avec rangement, d’un séjour lumineux ouvrant sur un balcon exposée Sud / Sud-Ouest offrant une vue dégagée, d’une cuisine indépendante équipée avec sa loggia attenante, de deux chambres, d’une salle d’eau et de toilettes séparées. Les prestations sont au rendez-vous : climatisation réversible, double vitrage, électricité et plomberie reprises, peintures récentes, sols contemporains et cuisine neuve. L’appartement est vendu avec une cave et une place de parking privative en extérieur. Emplacement recherché (arrêt de bus ligne 2), copropriété entretenue, et aucun travaux à prévoir. Les + : - Appartement rénové - Appartement climatisé - Ravalement de façade fait en 2020 - Exposition Sud / Sud-Ouest - Vue dégagée et balcon de 7 m² - Résidence sécurisée avec ascenseur - Parking privatif + cave - Arrêt de bus ligne 2 à proximité de la copropriété Pour découvrir ce bel appartement, contactez-moi au plus vite ! CANNES – Petit Juas area – Renovated 2 bedrooms apartment with terrace, cellar and parking Just a 10 minutes walk from the Forville market, 15 minutes walf from the Croisette and beach, and 5 minutes from the Institut Stanislas, discover this bright 58 m² apartment on the 2nd floor of a secure residence with lift, located in a quiet and pleasant neighborhood. Fully renovated with taste, it features an entrance with storage, a bright living room opening onto a South / South-West facing terrace with an open view, an independent fitted kitchen with a small utility loggia, two bedrooms, a shower room and separate toilets. High-quality features : reversible air conditioning, double glazing, updated electricity and plumbing, fresh paint, modern flooring, and a brand-new kitchen. The apartment comes with a private outdoor parking space and a cellar. Well-maintained building, sought-after location, and no renovation work needed. Highlights : - Fully renovated apartment - Air-conditioning - South / South-West exposure - Open view and 7 m² terrace - Secure residence with lift - Private parking + cellar Contact me to arrange a viewing of this beautiful apartment. La presente annonce immobiliere vise 3 lots situés dans une copropriété de 186 lots au total et ne faisant l'objet d'aucune procédure en cours citée à l'article L. 721-1 du code de la construction et de l'habitation. Montant moyen mensuel de charges déclaré par le vendeur : 240.08€ par mois (soit 2881 € annuel). Honoraires d'agence à la charge du vendeur. Information d'affichage énergétique sur ce bien : classe ENERGIE C indice 105 et classe CLIMAT C indice 17. Les informations sur les risques auxquels ce bien est exposé, y compris l'obligation légale de débroussaillement, sont disponibles sur le site Géorisques : http://www.georisques.gouv.fr. La présente annonce immobilière a été rédigée sous la responsabilité éditoriale de Mme Laetitia Gluza mandataire indépendant en immobilier (sans détention de fonds), agent commercial de la SAS I@D France immatriculé au RSAC de GRASSE sous le numéro 881108211, titulaire de la carte de démarchage immobilier pour le compte de la société I@D France SAS.
À proximité
Recherche des commodités à proximité...
Détails de l'annonce
Localisation
Ville
Cannes
Pays
FR
Diagnostics / Énergie
Diagnostic DPE
105
Diagnostic GES
17
Surfaces / Pièces / Composition
Nombre d’étages
6
Chauffage et diagnostics
Diagnostic de performance énergétique (DPE)
a
b
c
d
e
f
g
Indice d'émission de gaz à effet de serre (GES)
a
b
c
d
e
f
g
