Type
Bien immobilierTarif
309 000 €Chambres
1Salles de bain
0Vente Appartement 2 pièces
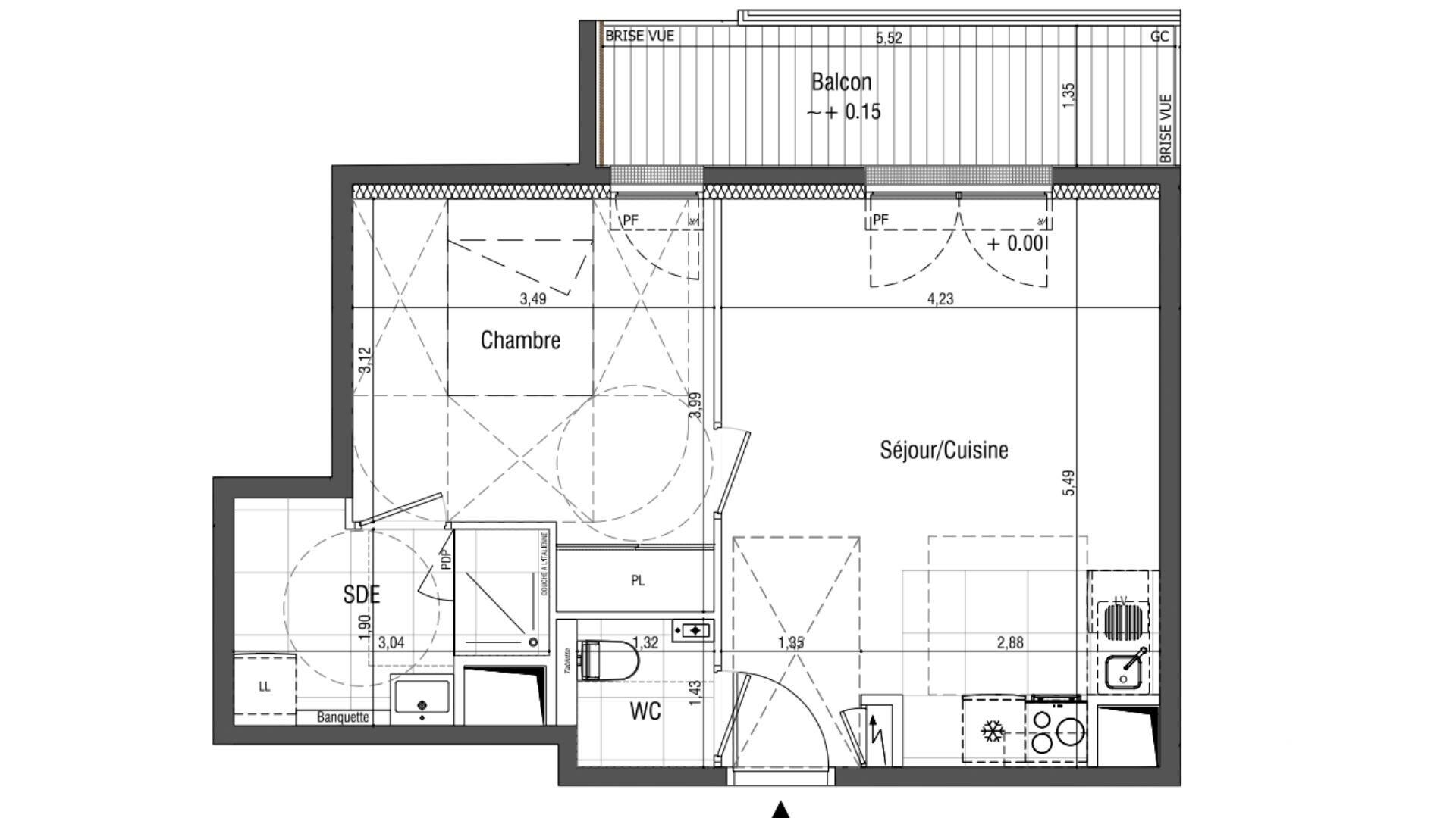
Iad France - Sarah Rozière (06 99 86 19 42) vous propose : Appartement T2 avec balcon à Saint-Germain-en-Laye. Située rue de Boufflers, au cOEur d’un domaine privé boisé, la résidence Le Jardin des Carmes offre un cadre de vie mêlant nature, élégance et sérénité. À quelques minutes du centre historique de Saint-Germain-en-Laye, cette résidence conjugue confort moderne, respect de l’environnement et authenticité architecturale. Disponible 2027. Un appartement raffiné : Situé au 1 er étage, cet appartement T2 de 42 m² environ habitables se prolonge par un balcon de 8 m² environ. - Séjour / cuisine de 22 m² environ. - Une chambre confortable. - Une salle d'eau moderne. - Annexe incluse : un parking intérieur. De belles prestations : - Chauffage urbain et eau chaude collective pour une gestion énergétique maîtrisée. - Résidence sécurisée, avec visiophone couleur, local à vélos et espaces verts paysagers en cOEur d’îlot. - Espace boisé classé, promenades, et faune protégée intégrés à l’environnement résidentiel. L’art de vivre à Saint-Germain-en-Laye : - À 9 min à vélo de la gare RER A et à 25 min de Paris – Porte de Neuilly. - Écoles d’excellence, commerces et restaurants à proximité immédiate. - Forêt domaniale, parc du Château et équipements culturels accessibles à pied. N’hésitez pas à me contacter pour plus d’informations ou pour un accompagnement sur mesure. Honoraires d’agence à la charge du vendeur. Bien non soumis au DPE. Les informations sur les risques auxquels ce bien est exposé sont disponibles sur le site Géorisques : www.georisques.gouv.fr. La présente annonce immobilière a été rédigée sous la responsabilité éditoriale de Mlle Sarah Rozière EI (ID 83696), mandataire indépendant en immobilier (sans détention de fonds), agent commercial de la SAS I@D France immatriculé au RSAC de Clermont-Ferrand sous le numéro 978616993, titulaire de la carte de démarchage immobilier pour le compte de la société I@D France SAS. Retrouvez tous nos biens sur notre site internet. www.iadfrance.fr.
À proximité
Recherche des commodités à proximité...
Détails de l'annonce
Localisation
Ville
Saint-Germain-en-Laye
Pays
FR
Surfaces / Pièces / Composition
Nombre d’étages
4
Chauffage et diagnostics
Diagnostic de performance énergétique (DPE)
a
b
c
d
e
f
g
Indice d'émission de gaz à effet de serre (GES)
a
b
c
d
e
f
g
