Type
Bien immobilierTarif
160 000 €Chambres
0Salles de bain
0Vente Pavillon 5 pièces
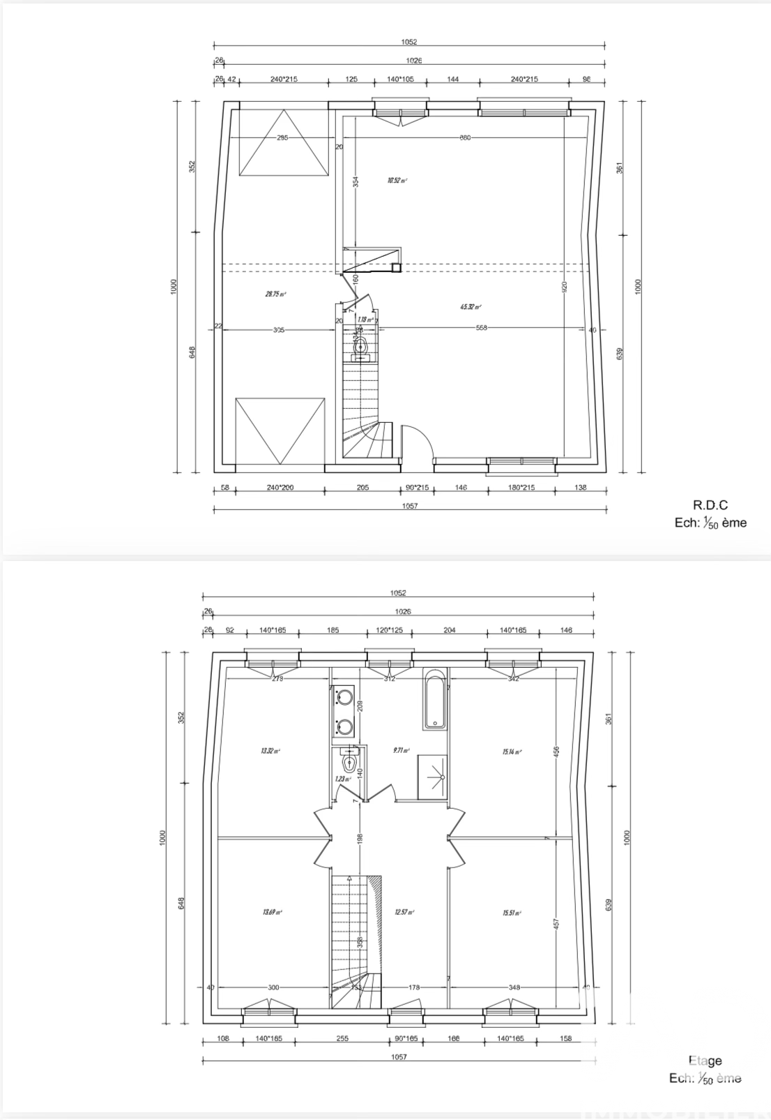
Iad France - Alina Grad vous propose : Maison neuve à terminer – 142 m² – Terrain 572 m² – Courcelles-Frémoy Située dans un environnement calme, cette maison individuelle neuve, achevée en décembre 2025, offre un fort potentiel d’aménagement sur une parcelle de 572 m². Le gros OEuvre est réalisé, laissant la possibilité de personnaliser entièrement les espaces intérieurs et les finitions pour créer un projet sur mesure. Les réseaux d’eau et d’électricité sont situés en limite de propriété, devant la maison. Les travaux intérieurs restent à finaliser pour rendre le bien habitable. Le terrain plat offre de beaux espaces extérieurs avec une grande partie non imperméabilisée. Trois arbres de haute tige sont prévus, et la parcelle est déjà clôturée. Deux places de stationnement sont possibles, dont une déjà intégrée à la construction, un garage traversant. Ce bien représente une opportunité idéale pour un projet de résidence principale, un investissement ou une maison à personnaliser entièrement, tout en bénéficiant d’une construction récente. Pour plus d’informations ou organiser une visite, contactez-moi ! Honoraires d'agence à la charge du vendeur. Bien non soumis au DPE. Les informations sur les risques auxquels ce bien est exposé, y compris l'obligation légale de débroussaillement, sont disponibles sur le site Géorisques : http://www.georisques.gouv.fr. La présente annonce immobilière a été rédigée sous la responsabilité éditoriale de Mme Alina Grad mandataire indépendant en immobilier (sans détention de fonds), agent commercial de la SAS I@D France immatriculé au RSAC de Pontoise sous le numéro 981440340, titulaire de la carte de démarchage immobilier pour le compte de la société I@D France SAS.
À proximité
Recherche des commodités à proximité...
Détails de l'annonce
Localisation
Ville
Courcelles-Frémoy
Pays
FR
Surfaces / Pièces / Composition
Nombre d’étages
2
Chauffage et diagnostics
Diagnostic de performance énergétique (DPE)
a
b
c
d
e
f
g
Indice d'émission de gaz à effet de serre (GES)
a
b
c
d
e
f
g
