Type
Bien immobilierTarif
169 500 €Chambres
1Salles de bain
0Vente Appartement 2 pièces
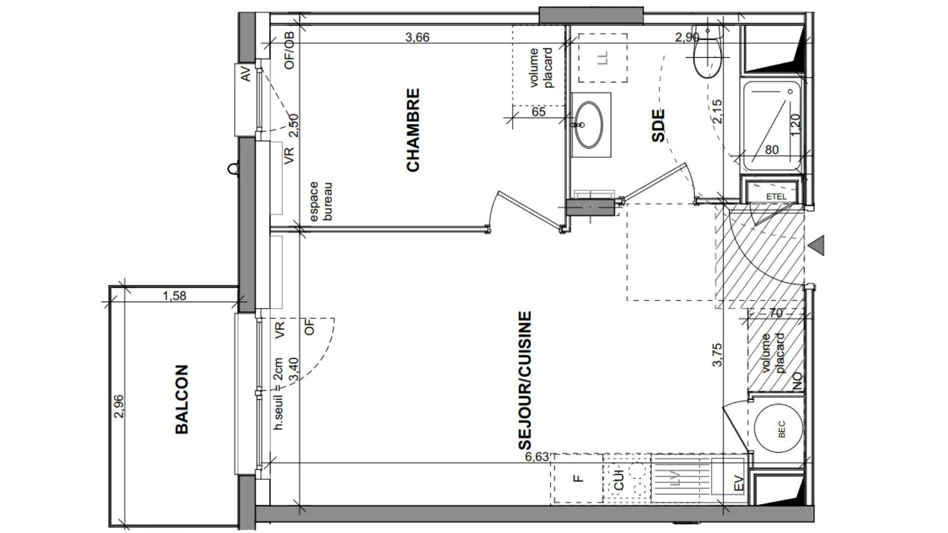
Iad France - Sarah Rozière (06 99 86 19 42) vous propose : Appartement T2 avec balcon à Wintzenheim. Située Rue Sainte-Odile à Wintzenheim, la résidence Éclats de Vigne s’inscrit dans un quartier calme et résidentiel, à proximité immédiate de Colmar. Son architecture sobre et contemporaine, associée à des espaces paysagers soignés, offre un cadre de vie agréable, pratique et serein, à proximité des commerces, des écoles et des transports. Disponible 2027. Un appartement raffiné : Situé au 1er étage, cet appartement T2 de 42 m² environ habitables se prolonge par un balcon de 5 m² environ. - Séjour / cuisine de 23 m² environ. - Une chambre confortable. - Salle d'eau moderne. - Annexe incluse : un parking. De belles prestations : - Menuiseries PVC avec volets roulants. - Résidence sécurisée, clôturée, avec contrôle d’accès et stationnements. L’art de vivre à Wintzenheim : - Commerces, écoles et services accessibles à proximité. - Colmar et son centre-ville à quelques minutes. - Transports en commun proches. - Accès rapide aux axes routiers principaux. - Quartier résidentiel calme, idéal pour une résidence principale ou un investissement. N’hésitez pas à me contacter pour plus d’informations ou pour un accompagnement sur mesure. Honoraires d’agence à la charge du vendeur. Bien non soumis au DPE. Les informations sur les risques auxquels ce bien est exposé sont disponibles sur le site Géorisques : www.georisques.gouv.fr. La présente annonce immobilière a été rédigée sous la responsabilité éditoriale de Mlle Sarah Rozière EI (ID 83696), mandataire indépendant en immobilier (sans détention de fonds), agent commercial de la SAS I@D France immatriculé au RSAC de Clermont-Ferrand sous le numéro 978616993, titulaire de la carte de démarchage immobilier pour le compte de la société I@D France SAS. Retrouvez tous nos biens sur notre site internet. www.iadfrance.fr.
À proximité
Recherche des commodités à proximité...
Détails de l'annonce
Localisation
Ville
Wintzenheim
Pays
FR
Surfaces / Pièces / Composition
Nombre d’étages
3
Chauffage et diagnostics
Diagnostic de performance énergétique (DPE)
a
b
c
d
e
f
g
Indice d'émission de gaz à effet de serre (GES)
a
b
c
d
e
f
g
