Type
Bien immobilierTarif
369 000 €Chambres
3Salles de bain
0Vente Appartement 4 pièces
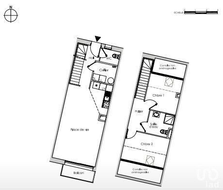
Iad France - Anthony Pain vous propose : Situé au cOEur de Bordeaux, dans le quartier dynamique de Mériadeck, à 12 minutes à pied de l’hôpital Pellegrin et 4 minutes du stade Chaban Delmas. Appartement T4 lumineux dans une résidence récente avec ascenseur et bien entretenue. Offrant une entrée, pièce de vie conviviale avec cuisine ouverte, cellier, 3 chambres, salle de bains et WC séparés, il séduit par son agencement fonctionnel et son balcon exposé plein sud. Vous bénéficierez également d'une cave et d'une place de parking en sous-sol. Proche des commerces, écoles et transports, ce bien est idéal pour une vie urbaine confortable et pratique. Une belle opportunité à saisir au cOEur de Bordeaux. La presente annonce immobiliere vise 3 lots situés dans une copropriété de 108 lots au total et ne faisant l'objet d'aucune procédure en cours citée à l'article L. 721-1 du code de la construction et de l'habitation. Montant moyen mensuel de charges déclaré par le vendeur : 114€ par mois (soit 1368 € annuel). Honoraires d'agence à la charge du vendeur. Information d'affichage énergétique sur ce bien : classe ENERGIE C indice 127 et classe CLIMAT A indice 3. Les informations sur les risques auxquels ce bien est exposé, y compris l'obligation légale de débroussaillement, sont disponibles sur le site Géorisques : http://www.georisques.gouv.fr. La présente annonce immobilière a été rédigée sous la responsabilité éditoriale de M Anthony Pain mandataire indépendant en immobilier (sans détention de fonds), agent commercial de la SAS I@D France immatriculé au RSAC de LA ROCHELLE sous le numéro 509374963, titulaire de la carte de démarchage immobilier pour le compte de la société I@D France SAS.
À proximité
Recherche des commodités à proximité...
Détails de l'annonce
Localisation
Ville
Bordeaux
Pays
FR
Diagnostics / Énergie
Diagnostic DPE
127
Diagnostic GES
3
Surfaces / Pièces / Composition
Nombre d’étages
4
Chauffage et diagnostics
Diagnostic de performance énergétique (DPE)
a
b
c
d
e
f
g
Indice d'émission de gaz à effet de serre (GES)
a
b
c
d
e
f
g
