Type
Bien immobilierTarif
164 900 €Chambres
2Salles de bain
0Vente Appartement 3 pièces
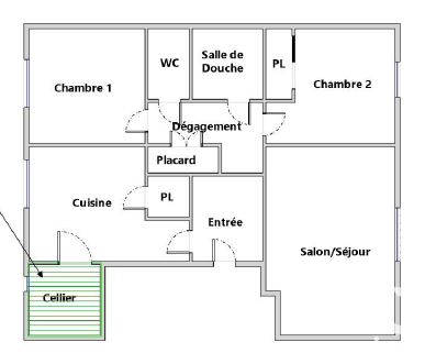
Iad France - Sylvie Waldung vous propose : Opportunité Rare ! Superbe Appartement T3 situé dans un quartier prisé de Reims, à proximité immédiate du Boulingrin, de la gare centre, de la place d'Erlon, de la future école NEOMA, des transports en commun (bus et tram 5 minutes à pied), des commerces locaux (pharmacie, boulangerie, supermarché, restaurants), des écoles, collège, lycée, ainsi que des services médicaux, cet appartement traversant de 60 m² offre un cadre de vie idéal pour les familles, les étudiants ou les jeunes actifs. Ce bien, situé au 3ème étage, bénéficie d'une orientation optimale avec une double exposition sud-est, offrant une luminosité exceptionnelle tout au long de la journée. Avec ses 2 chambres, sa salle de bain, son WC séparé, sa cuisine équipée et son agréable séjour donnant accès à un balcon, cet appartement a été entièrement rénové pour offrir un confort absolu à ses occupants. La résidence sécurisée propose des équipements incluant un ascenseur, un interphone, un digicode, et un accès internet. Pour votre confort, vous pourrez profiter des espaces verts aménagés au sein de la copropriété. Une cave et une place de parking privative complète ce bien. Ne manquez pas cette occasion unique d'acquérir un appartement entièrement rénové, lumineux et parfaitement situé à Reims. Contactez-moi dès maintenant pour planifier une visite. La presente annonce immobiliere vise 3 lots situés dans une copropriété de 200 lots au total et ne faisant l'objet d'aucune procédure en cours citée à l'article L. 721-1 du code de la construction et de l'habitation. Montant moyen mensuel de charges déclaré par le vendeur : 165€ par mois (soit 1980 € annuel). Honoraires d'agence à la charge du vendeur. Information d'affichage énergétique sur ce bien : classe ENERGIE D indice 224 et classe CLIMAT D indice 48. Les informations sur les risques auxquels ce bien est exposé, y compris l'obligation légale de débroussaillement, sont disponibles sur le site Géorisques : http://www.georisques.gouv.fr. La présente annonce immobilière a été rédigée sous la responsabilité éditoriale de Mme Sylvie Waldung mandataire indépendant en immobilier (sans détention de fonds), agent commercial de la SAS I@D France immatriculé au RSAC de REIMS sous le numéro 948997952, titulaire de la carte de démarchage immobilier pour le compte de la société I@D France SAS.
À proximité
Recherche des commodités à proximité...
Détails de l'annonce
Localisation
Ville
Reims
Pays
FR
Diagnostics / Énergie
Diagnostic DPE
224
Diagnostic GES
48
Surfaces / Pièces / Composition
Nombre d’étages
10
Étage
3
Chauffage et diagnostics
Diagnostic de performance énergétique (DPE)
a
b
c
d
e
f
g
Indice d'émission de gaz à effet de serre (GES)
a
b
c
d
e
f
g
