Type
Bien immobilierTarif
85 000 €Chambres
0Salles de bain
0Vente Maison de campagne 4 pièces
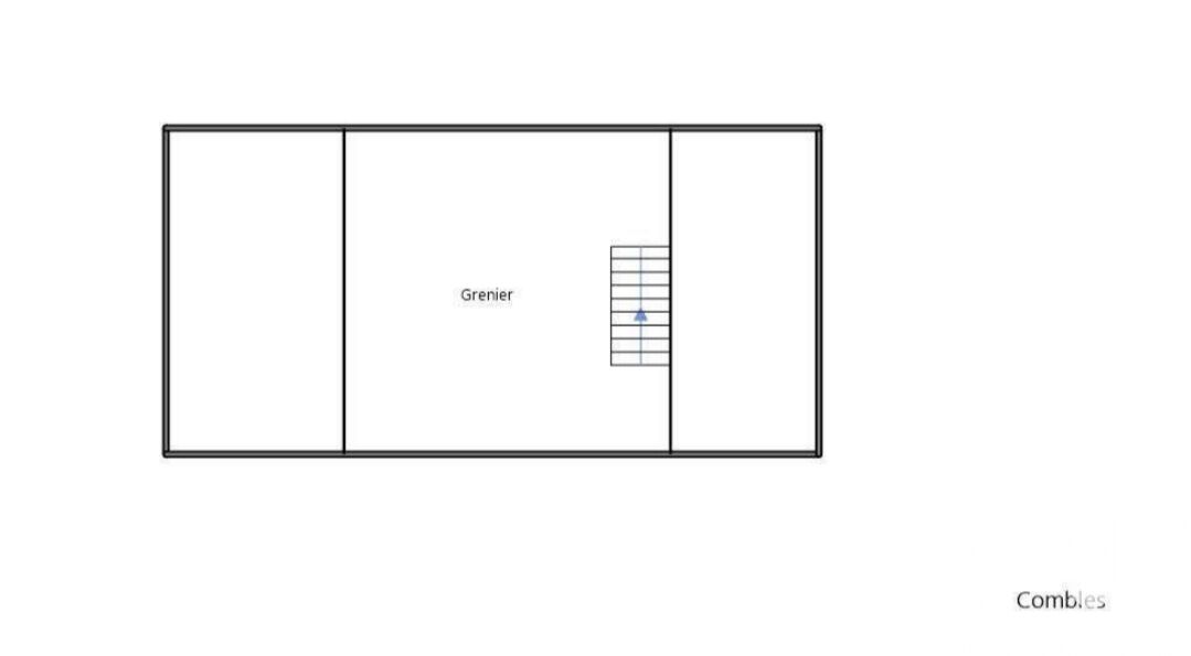
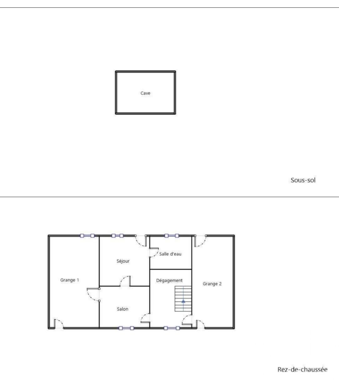
Iad France - Elisabeth Brichot vous propose : Amoureux des belles pierres, je vous propose cet ancien corps de ferme de 250 m² à TARZY. Niché dans un écrin de verdure, il vous offre une véritable page blanche à réinventer entièrement. Situé à la campagne, proche de SIGNY LE PETIT et de toutes les commodités recherchées, il se compose d'un vaste bâtiment à réhabiliter complètement, avec de beaux volumes et un charme brut prêt a être sublimé. Au RDC, une entrée de 23 m², une SDB de 9 m², une pièce de 15 m² et 2 anciennes écuries de chaque côté de 36 et 45 m². À l'étage, un vaste grenier à l'état brut sur toute la surface de la maison. Pour finir de vous séduire, un terrain confortable de 1553 m² entièrement clôturé pour profiter pleinement de la nature, créer un jardin et un espace convivial. Fosse septique non conforme TF 300 Honoraires d'agence à la charge du vendeur. Bien non soumis au DPE. Les informations sur les risques auxquels ce bien est exposé, y compris l'obligation légale de débroussaillement, sont disponibles sur le site Géorisques : http://www.georisques.gouv.fr. La présente annonce immobilière a été rédigée sous la responsabilité éditoriale de Mme Elisabeth Brichot mandataire indépendant en immobilier (sans détention de fonds), agent commercial de la SAS I@D France immatriculé au RSAC de SEDAN sous le numéro 883933160, titulaire de la carte de démarchage immobilier pour le compte de la société I@D France SAS.
À proximité
Recherche des commodités à proximité...
Détails de l'annonce
Localisation
Ville
Tarzy
Pays
FR
Chauffage et diagnostics
Diagnostic de performance énergétique (DPE)
a
b
c
d
e
f
g
Indice d'émission de gaz à effet de serre (GES)
a
b
c
d
e
f
g
