Type
Bien immobilierTarif
355 000 €Chambres
5Salles de bain
0Vente Maison traditionnelle 7 pièces
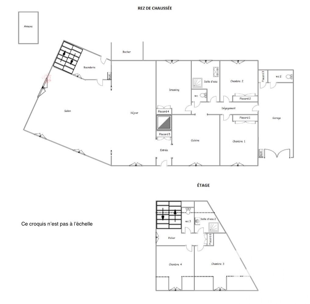
Iad France - Aurelie Outhier vous propose : BIEN RARE en exclusivité avec DPE C et aucune anomalie électrique : Maison traditionnelle - 5 chambres - VASTE pièce de vie LUMINEUSE - Garage - Atelier - Saint-André-les-Vergers. Découvrez cette charmante maison traditionnelle de 148 m² et près de 170 m² au sol sur son terrain clos, arboré et très bien entretenu de 700 m². À la recherche de confort et d'espace ? La propriété vous offre un cadre de vie idéal, à 2 min à pied du bus TCAT ligne 5. Avec 5 chambres, 2 salles d'eau, 3 wc et de multiples espaces de vie fonctionnels et ses dépendances, cette maison spacieuse comblera tous vos besoins. Au rez-de-chaussée, l'entrée avec placard aménagé dessert d'un côté la cuisine séparée entièrement aménagée & équipée signée ENVIA, et de l'autre côté une agréable pièce de vie offrant une surface généreuse & lumineuse de 65 m². Un dégagement vous mène à la salle d'eau, au WC et à 3 chambres confortables, dont 1 actuellement aménagée en dressing, les 2 autres étant pourvues de placards aménagés. Une cave est facilement accessible depuis la pièce de vie. Une buanderie avec accès extérieur complète ce niveau. Le garage carrelé est accessible depuis la maison, celui-ci dispose d'un placard, d'un évier et d'une pièce avec wc et lave-mains. Ensuite, l'escalier carrelé vous mène de la pièce de vie au palier de l'étage (avec placard aménagé) desservant 2 chambres, la salle d'eau et le WC. Un grenier est accessible par l'une de ces 2 chambres. Profitez d'une terrasse avec store banne électrique et barbecue pour vos moments de détente en extérieur. Atelier avec dalle et électricité + grenier. Appenti pour stockage du bois. Bac récupérateur d'eau, points d'eau, puit. Pour votre confort : double vitrage 4 / 16 / 4, système de chauffage électrique avec thermostats par plafond rayonnant (outre la qualité de chauffe douce et agréable, l'absence de radiateur est un vrai plus), insert de cheminée, cumulus électriques, vmc, fibre optique, interphone, portillon, portail et porte de garage électriques, tout-à-l'égout. Volets roulants pour les chambres de l'étage. Volets bois au rdc. Aucune anomalie électrique, absence d'amiante. Cette maison de 1988 avec extension de 2003 est l'opportunité parfaite pour ceux en quête d'une résidence spacieuse, confortable, toujours entretenue et bien située. Ne manquez pas cette occasion unique, appelez-moi dès maintenant pour en savoir plus et programmer une visite ! Plus de photos sur le site iadfrance. Vidéo disponible. Honoraires d'agence à la charge du vendeur. Information d'affichage énergétique sur ce bien : classe ENERGIE C indice 177 et classe CLIMAT B indice 7. Les informations sur les risques auxquels ce bien est exposé, y compris l'obligation légale de débroussaillement, sont disponibles sur le site Géorisques : http://www.georisques.gouv.fr. La présente annonce immobilière a été rédigée sous la responsabilité éditoriale de Mme Aurelie Outhier mandataire indépendant en immobilier (sans détention de fonds), agent commercial de la SAS I@D France immatriculé au RSAC de TROYES sous le numéro 893032383, titulaire de la carte de démarchage immobilier pour le compte de la société I@D France SAS.
Ce mois
Cette annonce est récente
À proximité
Recherche des commodités à proximité...
Détails de l'annonce
Localisation
Ville
Saint-André-les-Vergers
Pays
FR
Diagnostics / Énergie
Diagnostic DPE
177
Diagnostic GES
7
Surfaces / Pièces / Composition
Nombre d’étages
2
Chauffage et diagnostics
Diagnostic de performance énergétique (DPE)
a
b
c
d
e
f
g
Indice d'émission de gaz à effet de serre (GES)
a
b
c
d
e
f
g
