Type
Bien immobilierTarif
265 000 €Chambres
2Salles de bain
0Vente Maison/villa 3 pièces
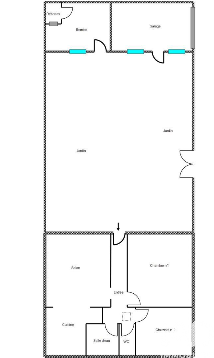
Iad France - Laura Ropion vous propose : TOULON OUEST - Charmante Maison Traditionnelle à Rénover. Cette charmante maison traditionnelle offre un beau potentiel pour devenir votre foyer. Construite en 1930, elle bénéficie d'un emplacement privilégié, proche des commodités, des écoles et des transports en commun, tout en étant nichée dans un environnement calme et verdoyant. D'une surface habitable de 69 m² sur un terrain de 305 m², cette maison de plain-pied comprend 2 chambres, une cuisine ouverte sur un séjour lumineux, une salle d'eau, et un WC séparé. Un garage ainsi qu'un espace de stationnement extérieur vous offrent des facilités pour le stationnement de vos véhicules. La maison bénéficie de trois expositions, sud, est et ouest, garantissant une luminosité optimale tout au long de la journée. Le jardin arboré et clos, avec sa terrasse ensoleillée, est un véritable havre de paix où vous pourrez profiter de moments de détente en plein air. Bien que nécessitant des travaux de rénovation, cette maison offre de nombreuses possibilités d'aménagement pour laisser libre cours à votre créativité et créer un espace de vie à votre image. Honoraires d'agence à la charge de l'acquéreur. Prix honoraires inclus : 265000 euros. Prix hors honoraires : 253000 euros. Honoraires TTC à la charge de l'acquéreur (4,74% du prix du bien hors honoraires) : 12000 euros. Information d'affichage énergétique sur ce bien : classe ENERGIE E indice 268 et classe CLIMAT B indice 10. Les informations sur les risques auxquels ce bien est exposé, y compris l'obligation légale de débroussaillement, sont disponibles sur le site Géorisques : http://www.georisques.gouv.fr. La présente annonce immobilière a été rédigée sous la responsabilité éditoriale de Mme Laura Ropion mandataire indépendant en immobilier (sans détention de fonds), agent commercial de la SAS I@D France immatriculé au RSAC de Toulon sous le numéro 884968603, titulaire de la carte de démarchage immobilier pour le compte de la société I@D France SAS.
Cette semaine
Cette annonce est récente
À proximité
Recherche des commodités à proximité...
Détails de l'annonce
Localisation
Ville
Toulon
Pays
FR
Diagnostics / Énergie
Diagnostic DPE
268
Diagnostic GES
10
Finances / Mandat / Références
Honoraires
12 €
Surfaces / Pièces / Composition
Nombre d’étages
Chauffage et diagnostics
Diagnostic de performance énergétique (DPE)
a
b
c
d
e
f
g
Indice d'émission de gaz à effet de serre (GES)
a
b
c
d
e
f
g
