Trouver...

Language: FR

Devise: EUR

Type
Bien immobilier
Tarif
219 900 €
Chambres
2
Salles de bain
0

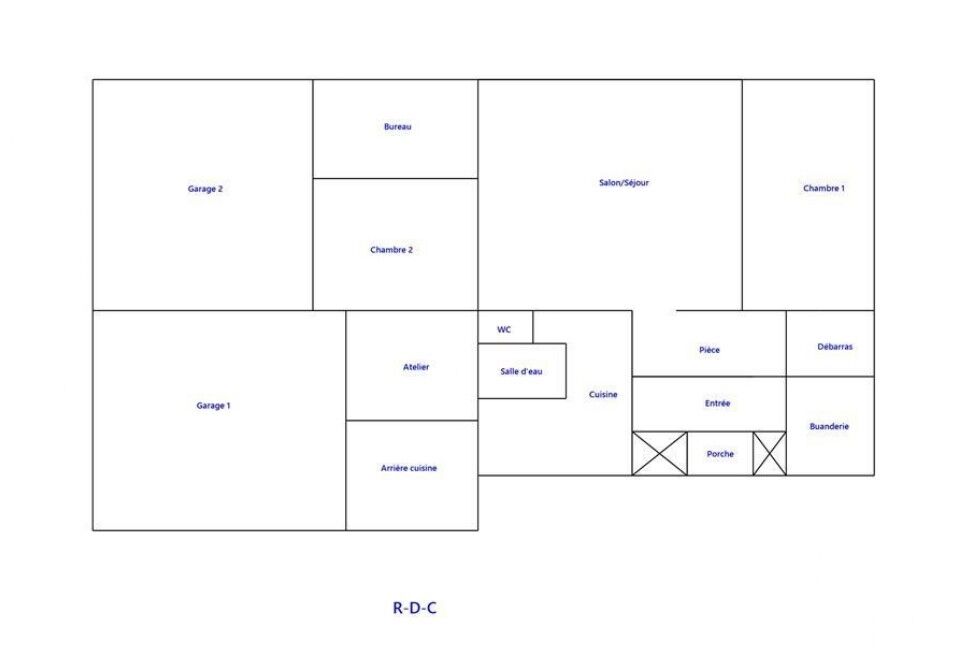
Vente Grange 6 pièces

Iad France - Mickaël SORIN vous propose : Rare, potentiel Incroyable sur 1 Hectare de Terrain A découvrir, maison en pierres de plain-pied d'environ 122 m² comprenant : Un hall d'entrée, une buanderie, un espace bureau, un débarras, une cuisine aménagée et équipée, une arrière cuisine, un WC, une salle d'eau, un salon / séjour avec poêle à pellets, ainsi que deux spacieuses chambres de plus de 15 m². Les + - Ouvertures pvc double vitrage / volets roulants électrique - Pour augmenter votre espace nuit un grenier aménageable. - Attenant une grange avec 2 espaces garage et une partie atelier d'environ 50 m² ainsi qu'un second espace de plus de 30 m². - Non attenant, hangar en tôle, ancien toit à cochon et annexe en dur de 50 m². Située dans un environnement calme et préservé, cette propriété bénéficie d'une exposition sud-ouest qui vous permettra de profiter pleinement de la luminosité naturelle tout au long de la journée. De plus, sa configuration de plain-pied facilite l'aménagement intérieur selon vos envies et besoins. Bien que nécessitant certains travaux comme l'assainissement à revoir, ainsi que certains aménagements, ce bien offre un potentiel immense. Les 10 000 m² de terrain qui l'entourent offrent un cadre exceptionnel pour réaliser votre projet de vie. -Pension équine -Projet gîte, yourte… N'hésitez pas à me contacter pour plus de renseignements ou pour organiser une visite. Honoraires d'agence à la charge du vendeur. Information d'affichage énergétique sur ce bien : classe ENERGIE D indice 211 et classe CLIMAT B indice 6. Les informations sur les risques auxquels ce bien est exposé, y compris l'obligation légale de débroussaillement, sont disponibles sur le site Géorisques : http://www.georisques.gouv.fr. La présente annonce immobilière a été rédigée sous la responsabilité éditoriale de M Mickaël SORIN mandataire indépendant en immobilier (sans détention de fonds), agent commercial de la SAS I@D France immatriculé au RSAC de la roche sur yon sous le numéro 891499949, titulaire de la carte de démarchage immobilier pour le compte de la société I@D France SAS.

À proximité

Recherche des commodités à proximité...

Détails de l'annonce

Localisation

Ville
La Chaize-le-Vicomte
Pays
FR

Diagnostics / Énergie

Diagnostic DPE
211
Diagnostic GES
6

Surfaces / Pièces / Composition

Nombre d’étages

Chauffage et diagnostics

Diagnostic de performance énergétique (DPE)
a
b
c
d
e
f
g
Indice d'émission de gaz à effet de serre (GES)
a
b
c
d
e
f
g
Rappelez-moi