Type
Bien immobilierTarif
1 320 000 €Chambres
4Salles de bain
0Vente Maison/villa 6 pièces
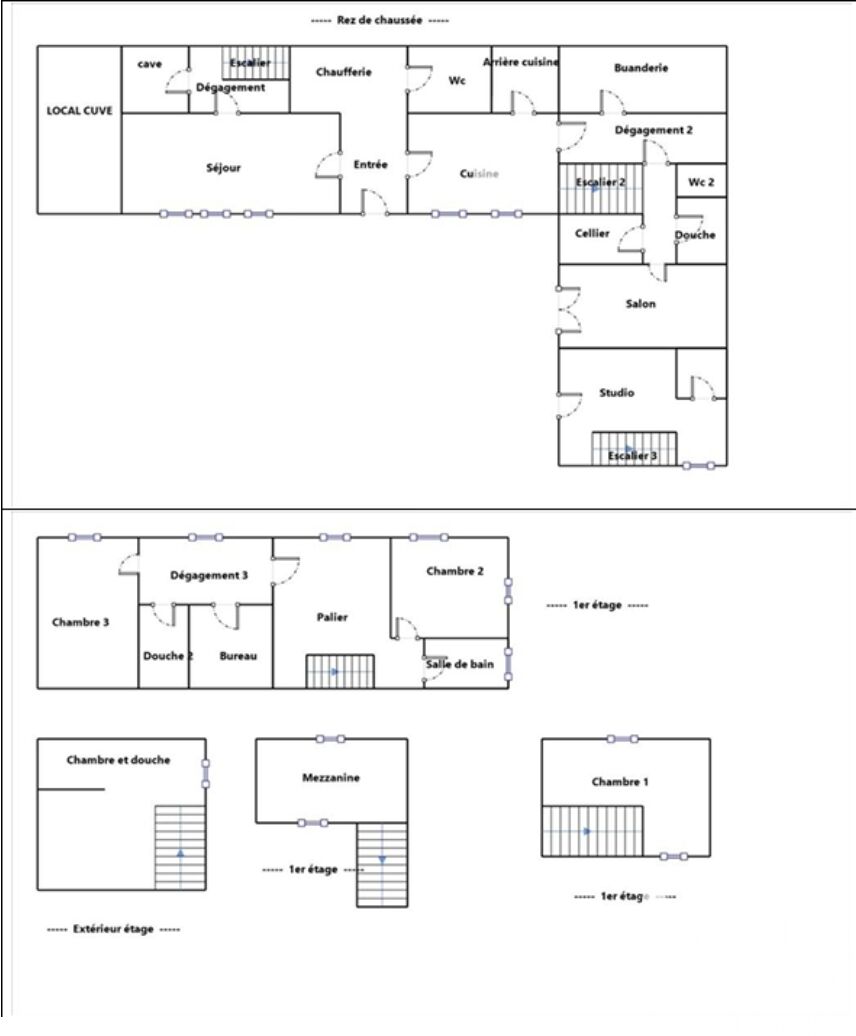
Iad France - Marion Poirel vous propose : Maison familiale rénovée par architecte – Quartier prisé de Colombes Au cOEur d’un quartier recherché de Colombes, apprécié pour sa qualité de vie et sa carte scolaire, cette maison se situe dans une rue calme, à quelques minutes à pied de la gare Les Vallées. D’une surface de 166 m², la maison s’organise sur plusieurs niveaux et offre des volumes confortables et bien pensés. Au rez-de-chaussée, l’entrée dessert une cuisine dinatoire, un espace buanderie, ainsi qu’un salon et une salle à manger avec cheminée, ouverts sur la terrasse et le jardin. Des WC indépendants et des rangements complètent ce niveau. Le premier étage accueille un palier avec rangements, une suite parentale avec dressing et salle de bain, une chambre supplémentaire, une salle d’eau et des WC indépendants. Au deuxième étage, deux chambres et une salle de bain avec WC composent un espace idéal pour enfants ou invités. La maison dispose également d’une terrasse et d'un jardin paysagé exposé sud sans vis à vis. Un garage ainsi qu’un sous-sol complètent ce bien et offrent de nombreux espaces de stockage. Entièrement rénovée par un architecte il y a 5 ans, la maison a été réalisée avec des matériaux de qualité et une attention particulière portée aux finitions. L’ensemble est prêt à être habité, sans travaux à prévoir. Carte scolaire : Elémentaire Lazare Carnot et collège Lakanal Honoraires d'agence à la charge du vendeur. Information d'affichage énergétique sur ce bien : classe ENERGIE D indice 229 et classe CLIMAT D indice 33. Les informations sur les risques auxquels ce bien est exposé, y compris l'obligation légale de débroussaillement, sont disponibles sur le site Géorisques : http://www.georisques.gouv.fr. La présente annonce immobilière a été rédigée sous la responsabilité éditoriale de Mme Marion Poirel mandataire indépendant en immobilier (sans détention de fonds), agent commercial de la SAS I@D France immatriculé au RSAC de NANTERRE sous le numéro 911005155, titulaire de la carte de démarchage immobilier pour le compte de la société I@D France SAS.
Ce mois
Cette annonce est récente
À proximité
Recherche des commodités à proximité...
Détails de l'annonce
Localisation
Ville
Colombes
Pays
FR
Diagnostics / Énergie
Diagnostic DPE
229
Diagnostic GES
33
Surfaces / Pièces / Composition
Nombre d’étages
Chauffage et diagnostics
Diagnostic de performance énergétique (DPE)
a
b
c
d
e
f
g
Indice d'émission de gaz à effet de serre (GES)
a
b
c
d
e
f
g
