Trouver...

Language: FR

Devise: EUR

Vente appartement 3 pièces

Publié le 17 September 2025
Type
Bien immobilier
Tarif
486 000 €
Chambres
2
Salles de bain
0

Vente appartement 3 pièces

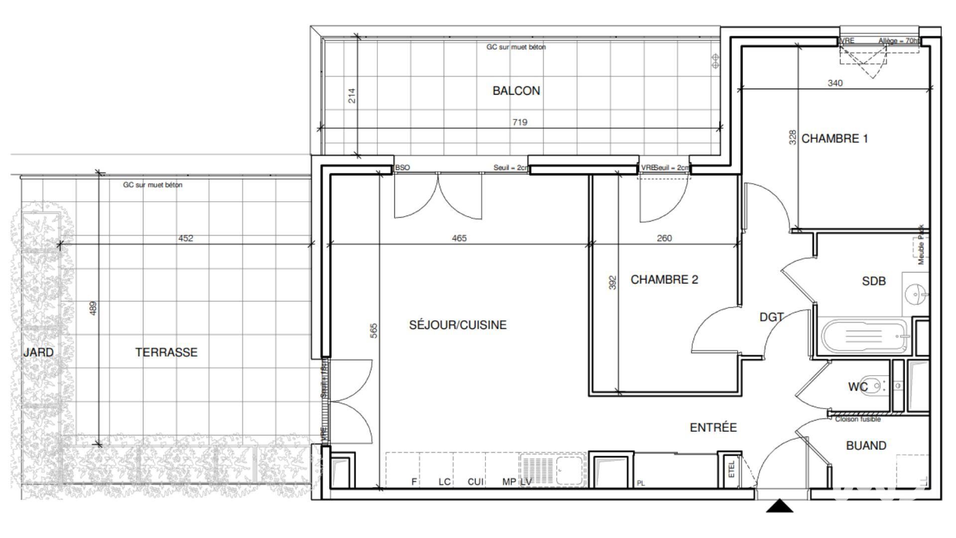
Iad France - Sarah Rozière (06 99 86 19 42) vous propose : Appartement 3 pièces avec terrasse et balcon à Annecy. Au cOEur du Quartier des Hirondelles, adresse contemporaine et verte signée par Nicolas Laisné Architectes et Groupe 6, la résidence Hypnose s’inscrit dans une démarche innovante, mêlant design et performance énergétique. Disponible 2026. Située avenue des Hirondelles, à quelques minutes du centre d’Annecy, cette résidence conjugue sérénité résidentielle et proximité urbaine. Un appartement intimiste : Au 4 ème étage, découvrez un 3 pièces de 65 m² environ habitables, prolongé par une terrasse de 23 m² environ et un balcon de 16 m² environ. - Un séjour / cuisine de 26 m² environ ouvrant sur l’extérieur. - Deux belles chambres confortables. - Une salle de bains et WC séparé. - Annexes : Box sous-sol. Belles prestations : - Menuiseries bois-aluminium avec double vitrage. - Brise-soleil orientables, volets roulants électriques. - Chauffage et eau chaude par chaudière collective bois. - Résidence sécurisée avec visiophone, digicode et accès par badge Vigik®. Une adresse recherchée à Annecy : - Centre historique et gare à 10 minutes à pied. - Lac d’Annecy en 15 minutes. - Proximité immédiate des commerces, écoles et services. - Un quartier innovant, pensé pour conjuguer biodiversité, mobilité douce et convivialité. Cet appartement conjugue modernité, confort et cadre privilégié, au cOEur d’un projet emblématique d’Annecy. Contactez-moi pour plus d’informations ou pour un accompagnement sur mesure. Honoraires d’agence à la charge du vendeur. Bien non soumis au DPE. Les informations sur les risques auxquels ce bien est exposé sont disponibles sur le site Géorisques : www.georisques.gouv.fr. La présente annonce immobilière a été rédigée sous la responsabilité éditoriale de Mlle Sarah Rozière EI (ID 83696), mandataire indépendant en immobilier (sans détention de fonds), agent commercial de la SAS I@D France immatriculé au RSAC de Clermont-Ferrand sous le numéro 978616993, titulaire de la carte de démarchage immobilier pour le compte de la société I@D France SAS. Retrouvez tous nos biens sur notre site internet. www.iadfrance.fr.

À proximité

Recherche des commodités à proximité...

Détails de l'annonce

Localisation

Ville
Annecy
Pays
FR

Surfaces / Pièces / Composition

Nombre d’étages
6
Étage
4

Chauffage et diagnostics

Diagnostic de performance énergétique (DPE)
a
b
c
d
e
f
g
Indice d'émission de gaz à effet de serre (GES)
a
b
c
d
e
f
g
Rappelez-moi