Type
Bien immobilierTarif
1 116 000 €Chambres
4Salles de bain
0Vente Maison longère 6 pièces
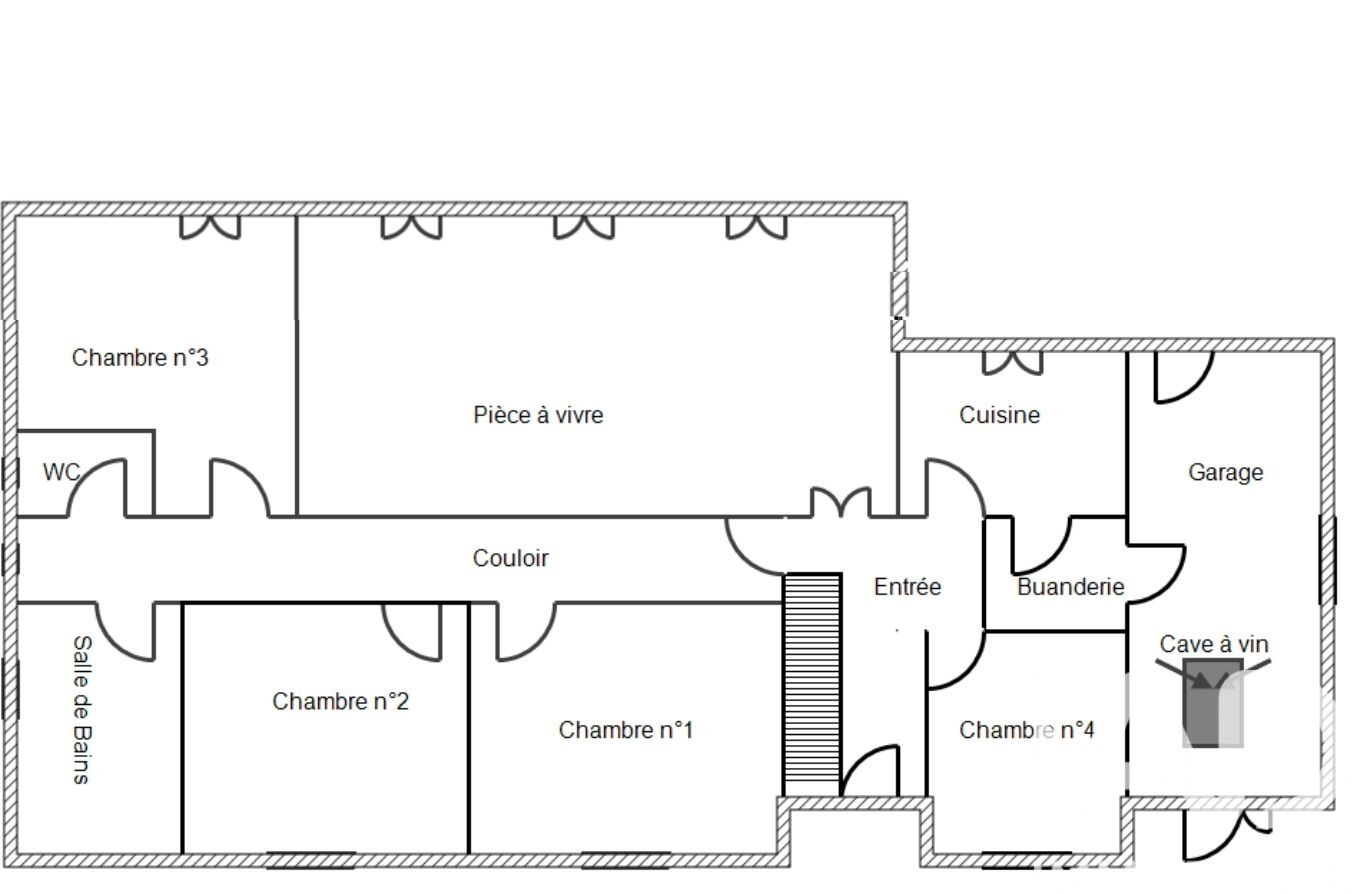
Iad France - Jean-Marie Guyot vous propose : À deux pas (1,2km) de la gare de la Baule, des commerces et de toutes les commodités. Magnifique Chaumière de 1967 parfaitement entretenue et renovée avec gouts et materiaux de qualité. Ce bien est doté d'une vie de plain-pied avec une très belle chambre parentale, dressing, salle de bain privative, wc et un bureau. Un grand salon / séjour / salle à manger avec mezzanine et sa cheminée pour les longues soirées d'hiver, sans oublier le bow window offrant une vue à 180 ° sur le magnifique parc paysager. À l'étage une Master room avec dressing et salle de bain, avec de nombreux rangements ainsi que deux autres chambres. Ce bien est doté d'une piscine exposée sud / Ouest, d'un double garage et d'une parcelle constructible. Pour compléter cette magnifique demeure une dépendance de 66 m² environ construite en 2007 amenagée en deux duplex entièrement equipés avec places de stationnements, idéal pour locatif. Bien rare à la vente à ne pas louper. Honoraires d'agence à la charge du vendeur. Information d'affichage énergétique sur ce bien : classe ENERGIE D indice 241 et classe CLIMAT D indice 39. Les informations sur les risques auxquels ce bien est exposé, y compris l'obligation légale de débroussaillement, sont disponibles sur le site Géorisques : http://www.georisques.gouv.fr. La présente annonce immobilière a été rédigée sous la responsabilité éditoriale de M Jean-Marie Guyot mandataire indépendant en immobilier (sans détention de fonds), agent commercial de la SAS I@D France immatriculé au RSAC de SAINT-NAZAIRE sous le numéro 890614118, titulaire de la carte de démarchage immobilier pour le compte de la société I@D France SAS.
À proximité
Recherche des commodités à proximité...
Détails de l'annonce
Localisation
Ville
Guérande
Pays
FR
Diagnostics / Énergie
Diagnostic DPE
241
Diagnostic GES
39
Surfaces / Pièces / Composition
Nombre d’étages
2
Chauffage et diagnostics
Diagnostic de performance énergétique (DPE)
a
b
c
d
e
f
g
Indice d'émission de gaz à effet de serre (GES)
a
b
c
d
e
f
g
