Type
Bien immobilierTarif
195 000 €Chambres
1Salles de bain
0Vente Appartement 2 pièces
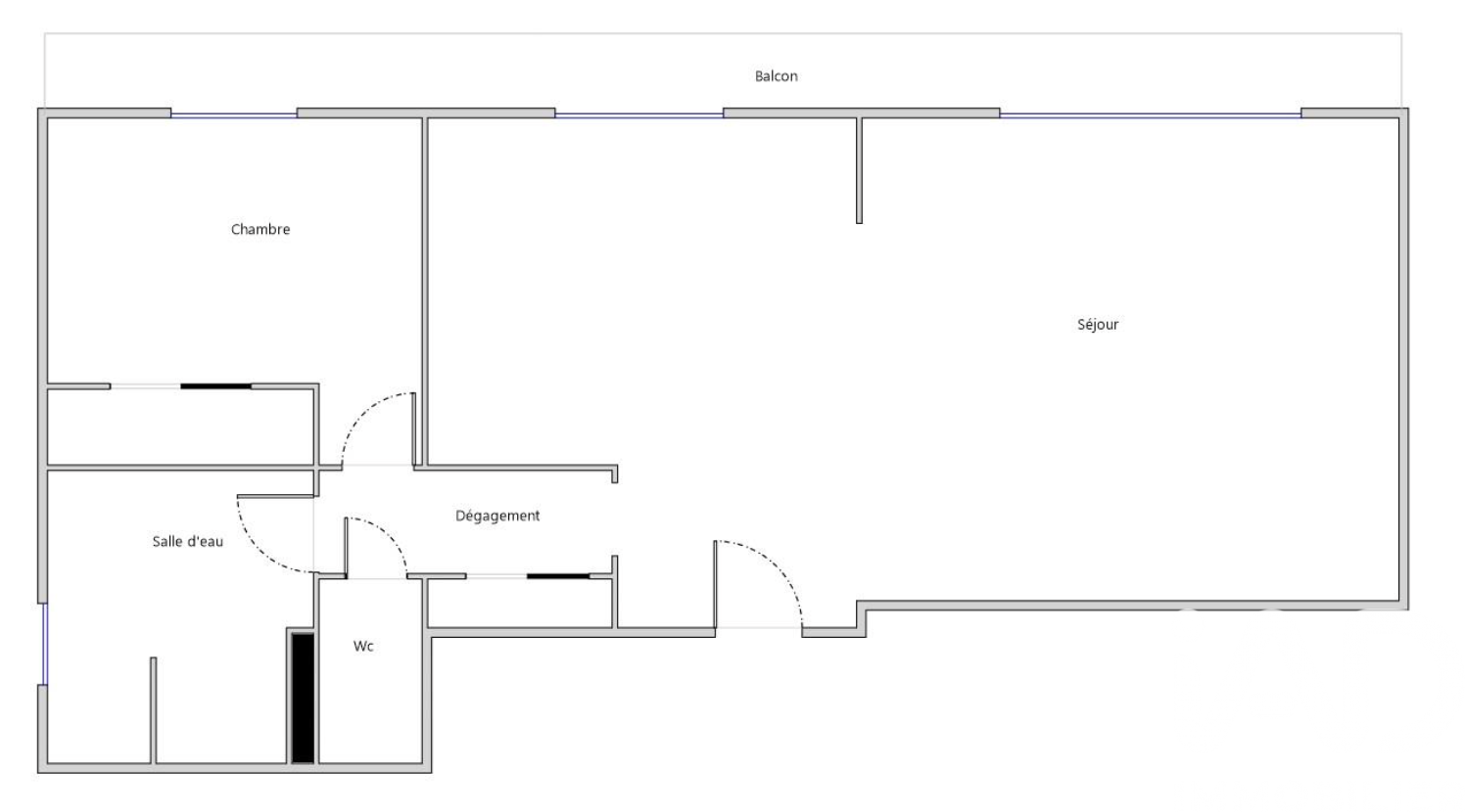
Iad France - Aurélie Pedrini vous propose : Charmant appartement 2 pièces de 48 m² avec balcon à Épinay-sur-Seine, limite Enghien. IDEAL PRIMO-ACCEDANT ! Découvrez ce ravissant appartement T2 situé au 8ème et dernier étage (avec ascenseur) d’une résidence de 1975 bien entretenue avec gardien. Avec une surface totale de 47.36 m², cet appartement aux prestations soignées s’organise comme suit : - Un salon très lumineux ouvert sur une cuisine moderne, entièrement équipée. - Dégagement avec placards desservant : - Un WC séparé avec placard de rangement - Une belle chambre avec grand placard de rangements et baie vitrée donnant accès au balcon. - Une salle d’eau moderne avec fenêtre. Depuis le salon et la chambre, de grandes baies vitrées coulissantes permettent d’accéder au balcon (environ 10 m²) orienté à l’Est. Les surfaces bien pensées et la disposition des pièces maximisent l'espace disponible, offrant une atmosphère chaleureuse. Parquet chêne dans le salon et la chambre. Une cave ainsi qu’une place de stationnement en extérieur complètent ce bien. Situé à 50m de la jetée du lac d’Enghien, à 10mn à pieds de la gare (ligne H Enghien) cet appartement est idéalement placé pour faciliter votre quotidien. Vous souhaitez davantage d’informations et organiser une visite ? CONTACTEZ-MOI ! La presente annonce immobiliere vise 3 lots situés dans une copropriété de 122 lots au total et ne faisant l'objet d'aucune procédure en cours citée à l'article L. 721-1 du code de la construction et de l'habitation. Montant moyen mensuel de charges déclaré par le vendeur : 290€ par mois (soit 3480 € annuel). Honoraires d'agence à la charge du vendeur. Information d'affichage énergétique sur ce bien : classe ENERGIE E indice 312 et classe CLIMAT E indice 64. Les informations sur les risques auxquels ce bien est exposé, y compris l'obligation légale de débroussaillement, sont disponibles sur le site Géorisques : http://www.georisques.gouv.fr. La présente annonce immobilière a été rédigée sous la responsabilité éditoriale de Mme Aurélie Pedrini mandataire indépendant en immobilier (sans détention de fonds), agent commercial de la SAS I@D France immatriculé au RSAC de Pontoise sous le numéro 931289938, titulaire de la carte de démarchage immobilier pour le compte de la société I@D France SAS.
À proximité
Recherche des commodités à proximité...
Détails de l'annonce
Localisation
Ville
Épinay-sur-Seine
Pays
FR
Diagnostics / Énergie
Diagnostic DPE
312
Diagnostic GES
64
Surfaces / Pièces / Composition
Nombre d’étages
8
Étage
8
Chauffage et diagnostics
Diagnostic de performance énergétique (DPE)
a
b
c
d
e
f
g
Indice d'émission de gaz à effet de serre (GES)
a
b
c
d
e
f
g
