Type
Bien immobilierTarif
540 471 €Chambres
0Salles de bain
0Vente Terrain à bâtir 4 191 m²
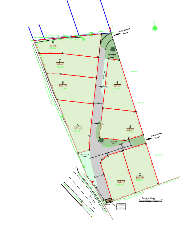
Iad France - Ludovic Desgages vous propose : Je vous propose une opportunité rare d’investissement dans un futur lotissement situé sur la commune de Courvaudon, dans un village recherché, idéalement placé à proximité de Caen, de Villers-Bocage et des Monts d’Aunay. Ce lotissement est composé de 8 terrains à bâtir d’une superficie comprise entre 504 m² et 550 m². Il s’agit d’un projet particulièrement attractif et prometteur, aussi bien pour un investisseur que pour un particulier souhaitant faire construire.
À proximité
Recherche des commodités à proximité...
Détails de l'annonce
Localisation
Ville
Courvaudon
Pays
FR
Surfaces / Pièces / Composition
Nombre d’étages
Chauffage et diagnostics
Diagnostic de performance énergétique (DPE)
a
b
c
d
e
f
g
Indice d'émission de gaz à effet de serre (GES)
a
b
c
d
e
f
g
