Trouver...

Language: FR

Devise: EUR

Vente Loft 5 pièces

Publié le 9 February 2026
Type
Bien immobilier
Tarif
2 080 000 €
Chambres
3
Salles de bain
0

Vente Loft 5 pièces

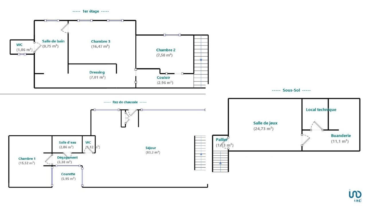
Iad France - Sophie Bovy vous propose : Paris Xème – Château d’Eau / Lancry - un triplex-loft d’architecte de 188 m² Carrez (196 m² au sol), exposé plein sud, au calme absolu, avec patio privatif. Usage mixte : habitation / professions libérales. Dans l'un des secteurs les plus recherchés du 10ème arrondissement, au sein d’une charmante cour pavée, ce triplex entièrement rénové par architecte offre de très beaux volumes. Le rez-de-chaussée s’organise autour d’une vaste pièce de vie de plus de 80 m², largement ouverte, avec une verrière toute hauteur apportant une belle lumière naturelle. La cuisine entièrement équipée et aménagée, s’intègre à l’espace. Une chambre, une salle de bain et des toilettes complètent ce niveau, avec la possibilité de créer facilement une seconde chambre (plans déjà existants). À l’étage, deux chambres exposées plein sud composent l’espace nuit, dont l’une, plus spacieuse de plus de 16 m², dispose d’un accès direct à sa salle de bain avec WC et à un dressing. Le sous-sol, entièrement aménagé, comprend une salle de projection ou studio d'enregistrement, un espace buanderie et une cave. L’ensemble organisé sur trois niveaux évoque un esprit maison au cOEur de Paris. L'exposition sud, la verrière sur toute la longueur du bien et le vis-à-vis dégagé assurent une très belle luminosité. Gardienne à demeure. Stationnement vélos. Un bien rare sur le secteur, qui se prête aussi bien à un usage d’habitation qu’à l’exercice d’une profession libérale (double destination). La presente annonce immobiliere vise 2 lots situés dans une copropriété de 130 lots au total et ne faisant l'objet d'aucune procédure en cours citée à l'article L. 721-1 du code de la construction et de l'habitation. Montant moyen mensuel de charges déclaré par le vendeur : 666.67€ par mois (soit 8000 € annuel). Honoraires d'agence à la charge du vendeur. Information d'affichage énergétique sur ce bien : classe ENERGIE D indice 201 et classe CLIMAT D indice 44. Les informations sur les risques auxquels ce bien est exposé, y compris l'obligation légale de débroussaillement, sont disponibles sur le site Géorisques : http://www.georisques.gouv.fr. La présente annonce immobilière a été rédigée sous la responsabilité éditoriale de Mme Sophie Bovy mandataire indépendant en immobilier (sans détention de fonds), agent commercial de la SAS I@D France immatriculé au RSAC de PARIS sous le numéro 911456416, titulaire de la carte de démarchage immobilier pour le compte de la société I@D France SAS.

À proximité

Recherche des commodités à proximité...

Détails de l'annonce

Localisation

Ville
Paris
Pays
FR

Diagnostics / Énergie

Diagnostic DPE
201
Diagnostic GES
44

Surfaces / Pièces / Composition

Nombre d’étages
4

Chauffage et diagnostics

Diagnostic de performance énergétique (DPE)
a
b
c
d
e
f
g
Indice d'émission de gaz à effet de serre (GES)
a
b
c
d
e
f
g
Rappelez-moi