Type
Bien immobilierTarif
380 000 €Chambres
5Salles de bain
0Vente Maison traditionnelle 7 pièces
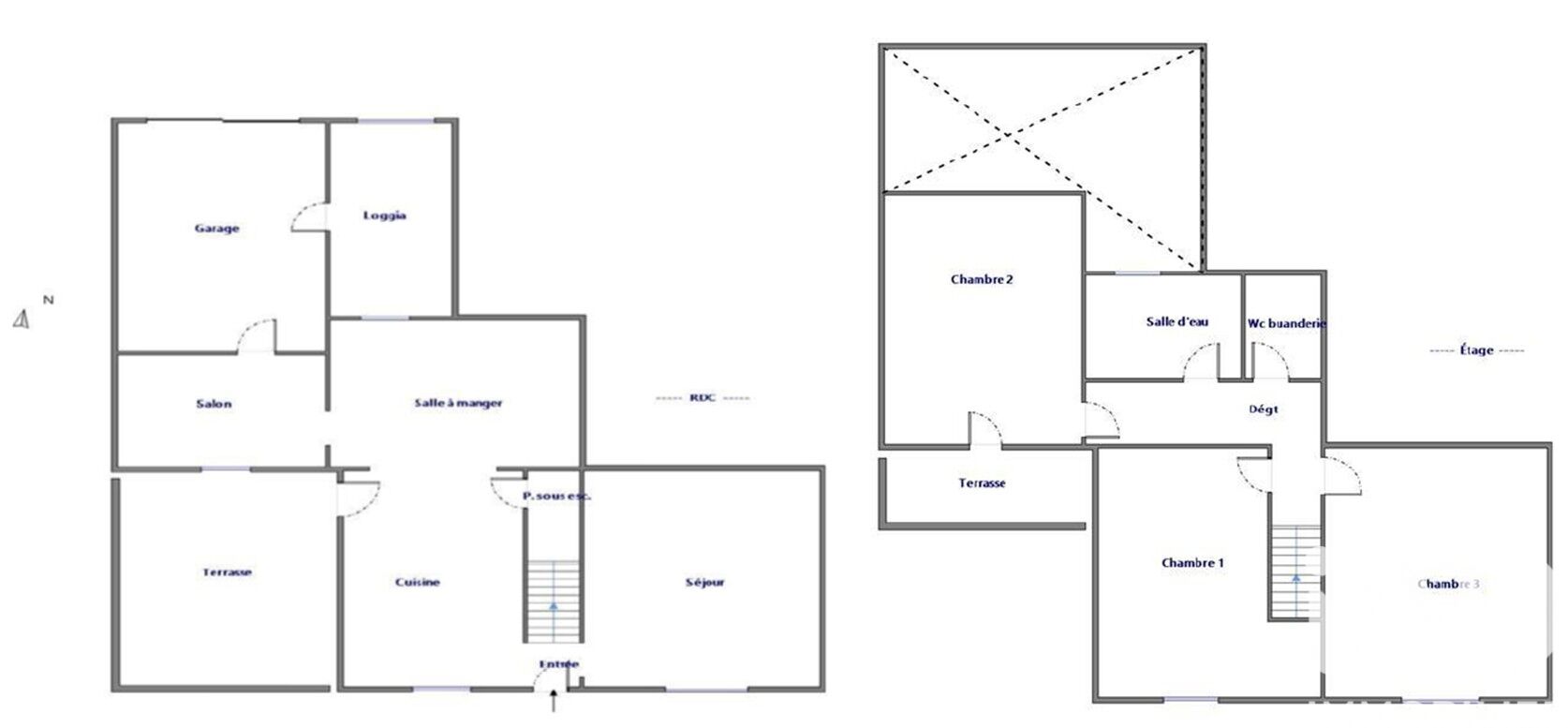
Iad France - Clément Hallé vous propose : Sublime maison traditionnelle avec grand jardin et piscine à Fontaineroux hameau de Héricy. Nichée au cOEur de la charmante commune d'Héricy, cette maison traditionnelle de 122 m² sur un terrain de 1871 m² comblera les amoureux de la nature et du calme. Construite en 1998 et en excellent état, elle offre un cadre de vie idyllique à ses futurs propriétaires. Au rez-de-chaussée, vous trouverez un spacieux salon-séjour lumineux de 29.67 m², une cuisine séparée, une buanderie, un cellier, une chambre, et un WC. L'agencement est pratique et fonctionnel, offrant un espace de vie harmonieux. À l'étage, vous découvrirez 4 chambres supplémentaires, un bureau, et une salle d'eau. La terrasse attenante à la maison et à la véranda vous permettra de profiter des journées ensoleillées en toute quiétude. Le vaste jardin arboré offre un environnement verdoyant et paisible, idéal pour se détendre en famille ou entre amis. La piscine constitue un véritable atout pour se rafraîchir lors des journées estivales. Les équipements de cette propriété sont dignes des attentes les plus exigeantes : connexion fibre optique, système de ventilation mécanique, chauffage individuel avec insert cheminée, climatisation réversible, convecteurs, pompe à chaleur, etc. Côté extérieur, un garage et un espace de stationnement vous permettront de garer vos véhicules en toute sécurité. L'exposition sud-ouest garantit une luminosité optimale tout au long de la journée. Cette maison allie confort, charme et tranquillité, offrant un véritable havre de paix à ses occupants. Ne laissez pas passer cette opportunité exceptionnelle et venez la visiter sans tarder. Honoraires d'agence à la charge du vendeur. Information d'affichage énergétique sur ce bien : classe ENERGIE C indice 144 et classe CLIMAT A indice 5. Les informations sur les risques auxquels ce bien est exposé, y compris l'obligation légale de débroussaillement, sont disponibles sur le site Géorisques : http://www.georisques.gouv.fr. La présente annonce immobilière a été rédigée sous la responsabilité éditoriale de M Clément Hallé mandataire indépendant en immobilier (sans détention de fonds), agent commercial de la SAS I@D France immatriculé au RSAC de MELUN sous le numéro 933840472, titulaire de la carte de démarchage immobilier pour le compte de la société I@D France SAS.
Ce mois
Cette annonce est récente
À proximité
Recherche des commodités à proximité...
Détails de l'annonce
Localisation
Ville
Héricy
Pays
FR
Diagnostics / Énergie
Diagnostic DPE
144
Diagnostic GES
5
Surfaces / Pièces / Composition
Nombre d’étages
2
Chauffage et diagnostics
Diagnostic de performance énergétique (DPE)
a
b
c
d
e
f
g
Indice d'émission de gaz à effet de serre (GES)
a
b
c
d
e
f
g
