Trouver...

Language: FR

Devise: EUR

Vente Longère 6 pièces

Publié le 14 November 2025
Type
Bien immobilier
Tarif
188 500 €
Chambres
4
Salles de bain
0

Vente Longère 6 pièces

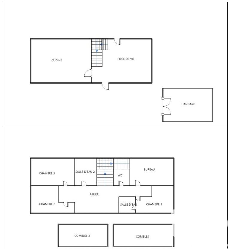
Iad France - Corinne Deleplace vous propose : Authentique Longère de Caractère à Herbignac - A Rénover mitoyenne par un coté. CLASSEMENT ENERGETIQUE 'C' Nichée dans un cadre verdoyant et paisible, cette longère chargée d'histoire reste rare à Herbignac. Datant d'avant 1900, elle offre un potentiel de rénovation exceptionnel pour les amateurs d'authenticité et de travaux. Avec une surface habitable de 142.83 m² et implantée sur un terrain de 710 m², ce bien se compose de 4 chambres à l'étage. Ainsi que les deux salles d'eau et les wc. Au rez de chaussée vous trouverez une pièce de vie avec son entrée. Séparée d'une très grande salle conviviale où une cuisine est installée. La nature environnante procure une atmosphère apaisante, avec une exposition plein sud. Une très grande terrasse avec une vue sur les champs sans vis à vis. Un grand hangar permettant un beau volume de rangement. Des travaux d'amélioration en Energie ont été effectués il y a moins de 5 ans comme le chauffage par insert, chaudière par alimentation en gaz est qui est assurée par une citerne enterrée. L'isolation des combles. Les ouvertures sont en alu bicolore de très bonne qualité. Toiture en ardoise naturelle. Assainissement autonome en fausse toutes eaux à filtration épandage. NON CONFORME (explications par téléphone) Les travaux à prévoir : isolation des rampants, les deux salle de douche à refaire. le jointage des pierres en intérieures, les sols du rdc et étage ainsi que les murs. création d'un cuisine. Une opportunité rare d'acquérir une longère traditionnelle à rénover selon vos goûts. Contactez moi dès maintenant pour visiter. NEGOCIATION POSSIBLE Honoraires d'agence à la charge de l'acquéreur. Prix honoraires inclus : 188500 euros. Prix hors honoraires : 180000 euros. Honoraires TTC à la charge de l'acquéreur (4,72% du prix du bien hors honoraires) : 8500 euros. Information d'affichage énergétique sur ce bien : classe ENERGIE C indice 132 et classe CLIMAT C indice 28. Les informations sur les risques auxquels ce bien est exposé, y compris l'obligation légale de débroussaillement, sont disponibles sur le site Géorisques : http://www.georisques.gouv.fr. La présente annonce immobilière a été rédigée sous la responsabilité éditoriale de Mme Corinne Deleplace mandataire indépendant en immobilier (sans détention de fonds), agent commercial de la SAS I@D France immatriculé au RSAC de SAINT NAZAIRE sous le numéro 901632570, titulaire de la carte de démarchage immobilier pour le compte de la société I@D France SAS.

À proximité

Recherche des commodités à proximité...

Détails de l'annonce

Localisation

Ville
Herbignac
Pays
FR

Diagnostics / Énergie

Diagnostic DPE
132
Diagnostic GES
28

Finances / Mandat / Références

Honoraires
8 €

Chauffage et diagnostics

Diagnostic de performance énergétique (DPE)
a
b
c
d
e
f
g
Indice d'émission de gaz à effet de serre (GES)
a
b
c
d
e
f
g
Rappelez-moi