Type
Bien immobilierTarif
1 050 000 €Chambres
0Salles de bain
0Vente Maison de ville 5 pièces
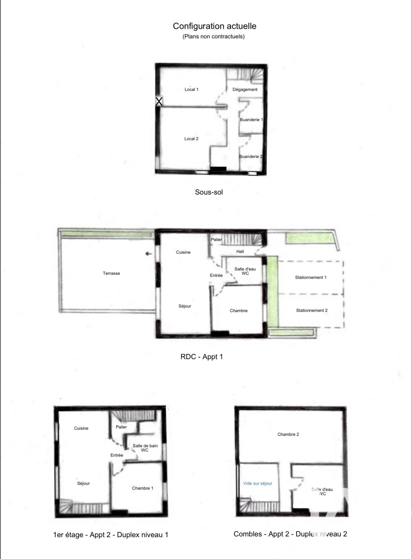
Iad France - Muriel Adelus vous propose : RARE ! SPACIEUSE MAISON DE VILLE DE 134 m² HABITABLE AVEC TERRASSE DE 40 m² ORIENTEE PLEIN SUD DANS QUARTIER RECHERCHE DE GARCHES ! Située à moins de 5 minutes à pied de la Place Saint-Louis, des commerces, des écoles, de la piscine, de l'arrêt du bus 360 (qui dessert les gares de Saint-Cloud en 7 minutes et de Garches en 5 minutes), la maison dispose d'une localisation idéale. Son agencement peut être adapté en fonction du besoin. La configuration actuelle en 2 appartements, 1 grand T2 et 1 duplex T3 permet à 2 générations d'habiter ensemble tout en étant chacun chez soi. L'appartement du rez-de-chaussée se compose d'une belle pièce de vie avec cuisine américaine s'ouvrant sur une grande terrasse propice aux moments de convivialité aux beaux jours, d'une chambre et d'une salle d'eau avec WC. Le duplex bénéficie, au 1er niveau, d'une lumineuse pièce de vie avec cuisine américaine, d'une chambre et d'une salle de bain avec WC et au 2nd niveau, d'une 2ème chambre et d'une salle d'eau avec WC. Un sous-sol total (dont certaines pièces peuvent être aménagées) et 2 places de stationnement extérieur complètent ce bien. La maison peut facilement être réagencée pour reformer un seul logement, laissant par exemple, la possibilité d'agrandir la pièce de vie, tout en conservant 3 chambres, de créer un bureau et au sous-sol, une chambre d'appoint (et une salle d'eau) ou une pièce de jeux ou encore une salle de sport. Les + : Double vitrage Volets roulants électriques Adoucisseur d'eau Climatisation Chauffage au gaz NE MANQUEZ PAS CETTE OPPORTUNITE D'ACQUERIR UNE MAISON DE VILLE AVEC UN VERITABLE EXTERIEUR NECESSITANT PEU D'ENTRETIEN QUI VOUS PROMET DE POUVOIR PROFITER PLEINEMENT DES BEAUX JOURS. UNE VISITE S'IMPOSE ! CONTACTEZ-MOI (7J / 7) DES AUJOURD'HUI POUR PLUS D'INFORMATION ET POUR ORGANISER UNE VISITE. Honoraires d'agence à la charge du vendeur. Information d'affichage énergétique sur ce bien : classe ENERGIE D indice 175 et classe CLIMAT D indice 38. Les informations sur les risques auxquels ce bien est exposé, y compris l'obligation légale de débroussaillement, sont disponibles sur le site Géorisques : http://www.georisques.gouv.fr. La présente annonce immobilière a été rédigée sous la responsabilité éditoriale de Mme Muriel Adelus mandataire indépendant en immobilier (sans détention de fonds), agent commercial de la SAS I@D France immatriculé au RSAC de Nanterre sous le numéro 919536003, titulaire de la carte de démarchage immobilier pour le compte de la société I@D France SAS.
Ce mois
Cette annonce est récente
À proximité
Recherche des commodités à proximité...
Détails de l'annonce
Localisation
Ville
Garches
Pays
FR
Diagnostics / Énergie
Diagnostic DPE
175
Diagnostic GES
38
Surfaces / Pièces / Composition
Nombre d’étages
4
Chauffage et diagnostics
Diagnostic de performance énergétique (DPE)
a
b
c
d
e
f
g
Indice d'émission de gaz à effet de serre (GES)
a
b
c
d
e
f
g
