Type
Bien immobilierTarif
364 000 €Chambres
4Salles de bain
0Vente Maison/villa 6 pièces
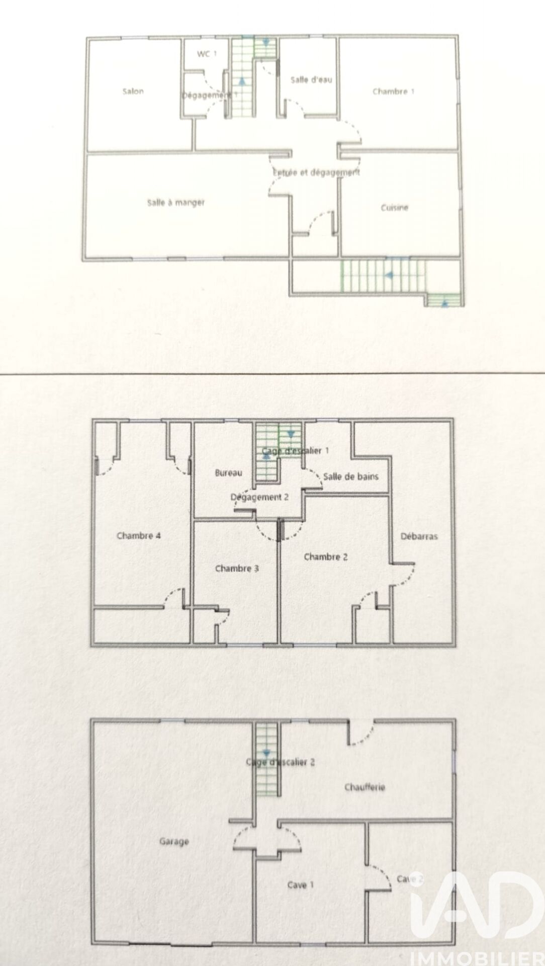
Iad France - Valérie Leclere vous propose : Charmante néo bretonne en granit rose à 5 MINUTES à pied DU PORT, DE LA GARE ET DE SES COMMODITES * QUARTIER CALME * RUE NON PASSANTE, venez découvrir cette maison au cOEur de Paimpol, cette ville côtière pleine de charme à proximité immédiate de l’île de Bréhat. Elle offre de beaux volumes pour une vie de famille harmonieuse. Exposée plein sud, vous bénéficierez d'une luminosité naturelle toute la journée, créant une ambiance agréable et apaisante dans chaque pièce. Un sous-sol total, (accessible par l'intérieur ou par l'extérieur) avec une buanderie, une chaufferie, un atelier et un garage de 29 m². Au 1er étage, vous trouverez : une entrée, une cuisine séparée de 11.76 m², une salle à manger de 21.62 m², un salon de 11,43 m², une chambre de 12,36 m², une salle d'eau équipée PMR, un WC séparé avec un espace de rangement. À l'étage, un palier dessert 3 chambres avec placards intégrés (de 11 m² à plus de 16 m²), ainsi qu'une salle d'eau de 5.18 m², un dégagement et un grand grenier de plus de 13 m². La toiture et les gouttières ont été refaites à neuf en 2018 ainsi que l'isolation du grenier. Cette maison, bien entretenue mais nécessitant des travaux de rénovation pour la remettre au goût du jour, est l'occasion parfaite de laisser libre cours à votre créativité et d'aménager votre cocon familial selon vos envies. Construite en 1964, cette maison offre une surface totale de 125 m². Ne manquez pas l'opportunité de visiter cette maison pleine de potentiel à Paimpol. Contactez moi dès maintenant pour programmer une visite et laissez-vous charmer par ce petit bijou breton ! Honoraires d'agence à la charge du vendeur. Information d'affichage énergétique sur ce bien : classe ENERGIE F indice 250 et classe CLIMAT F indice 78. Les informations sur les risques auxquels ce bien est exposé, y compris l'obligation légale de débroussaillement, sont disponibles sur le site Géorisques : http://www.georisques.gouv.fr. La présente annonce immobilière a été rédigée sous la responsabilité éditoriale de Mme Valérie Leclere mandataire indépendant en immobilier (sans détention de fonds), agent commercial de la SAS I@D France immatriculé au RSAC de Saint-Brieuc sous le numéro 941060758, titulaire de la carte de démarchage immobilier pour le compte de la société I@D France SAS.
Cette semaine
Cette annonce est récente
À proximité
Recherche des commodités à proximité...
Détails de l'annonce
Localisation
Ville
Paimpol
Pays
FR
Diagnostics / Énergie
Diagnostic DPE
250
Diagnostic GES
78
Surfaces / Pièces / Composition
Nombre d’étages
3
Chauffage et diagnostics
Diagnostic de performance énergétique (DPE)
a
b
c
d
e
f
g
Indice d'émission de gaz à effet de serre (GES)
a
b
c
d
e
f
g
