Type
Bien immobilierTarif
198 000 €Chambres
2Salles de bain
0Vente Appartement 3 pièces
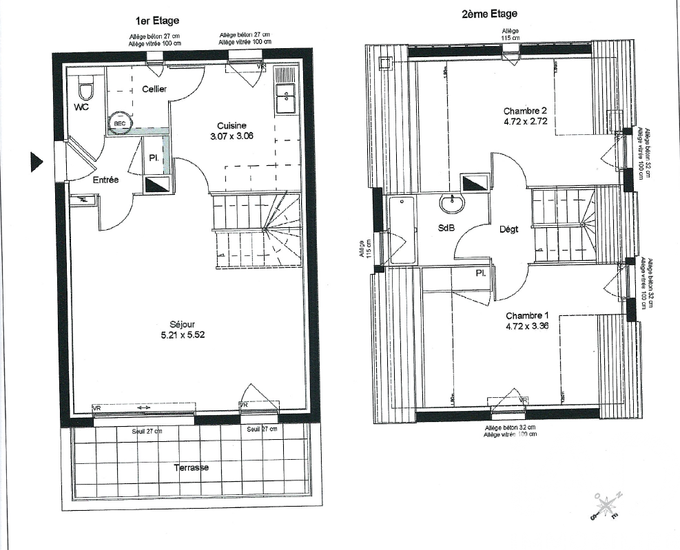
Iad France - Servane De Fromont vous propose : À Surzur, à pied des commerces et des commodités, venez découvrir cet appartement situé au 1er étage d’une petite copropriété de 2011. Vous serez séduits par cette belle pièce de vie lumineuse, avec sa cuisine semi-ouverte sur le salon, créant un espace convivial et agréable au quotidien. Un cellier attenant à la cuisine apporte un vrai confort de rangement. Le séjour s’ouvre sur un beau balcon exposé plein sud, parfait pour profiter des beaux jours. À ce niveau, vous trouverez également un WC séparé. L’appartement est en duplex : À l’étage, l’espace nuit se compose de deux chambres confortables et d’une salle de bain. Côté stationnement, vous bénéficierez d’un box fermé ainsi que d’une place en sous-sol. L'appartement est actuellement loué (loyer actuel : 611,85 €), avec un départ envisagé prochainement par le locataire, permettant une disponibilité du bien dans un délai raisonnable. N’hésitez pas à me contacter pour plus d’informations ou organiser une visite ! La presente annonce immobiliere vise 3 lots situés dans une copropriété de 95 lots au total et ne faisant l'objet d'aucune procédure en cours citée à l'article L. 721-1 du code de la construction et de l'habitation. Montant moyen mensuel de charges déclaré par le vendeur : 71€ par mois (soit 852 € annuel). Honoraires d'agence à la charge de l'acquéreur. Prix honoraires inclus : 198000 euros. Prix hors honoraires : 190000 euros. Honoraires TTC à la charge de l'acquéreur (4,21% du prix du bien hors honoraires) : 8000 euros. Information d'affichage énergétique sur ce bien : classe ENERGIE C indice 144 et classe CLIMAT A indice 5. Les informations sur les risques auxquels ce bien est exposé, y compris l'obligation légale de débroussaillement, sont disponibles sur le site Géorisques : http://www.georisques.gouv.fr. La présente annonce immobilière a été rédigée sous la responsabilité éditoriale de Mme Servane De Fromont mandataire indépendant en immobilier (sans détention de fonds), agent commercial de la SAS I@D France immatriculé au RSAC de VANNES CEDEX sous le numéro 921444634, titulaire de la carte de démarchage immobilier pour le compte de la société I@D France SAS.
Ce mois
Cette annonce est récente
À proximité
Recherche des commodités à proximité...
Détails de l'annonce
Localisation
Ville
Surzur
Pays
FR
Diagnostics / Énergie
Diagnostic DPE
144
Diagnostic GES
5
Finances / Mandat / Références
Honoraires
8 €
Chauffage et diagnostics
Diagnostic de performance énergétique (DPE)
a
b
c
d
e
f
g
Indice d'émission de gaz à effet de serre (GES)
a
b
c
d
e
f
g
