Type
Bien immobilierTarif
141 000 €Chambres
3Salles de bain
0Vente Maison traditionnelle 5 pièces
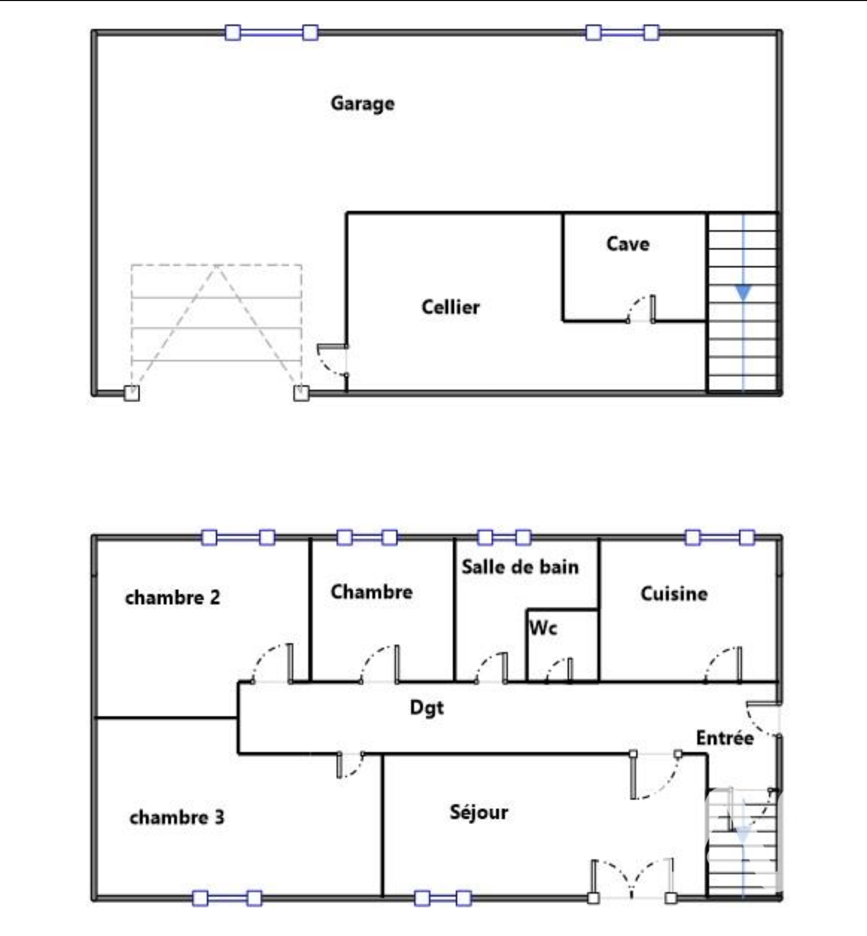
Iad France - Quentin Neau vous propose : EXCLUSIVITÉ – Maison familiale PMR à fort potentiel – Terrain constructible – Évron À quelques minutes à pied du centre-ville d’Évron, découvrez cette maison traditionnelle de 85 m², implantée sur un superbe terrain verdoyant et entièrement constructible de 1 644 m². Un bien rare, idéal pour une famille ou pour un projet patrimonial. La maison comprend une entrée desservant un séjour lumineux, une cuisine indépendante, trois chambres, une salle de bain et un WC séparé. Elle bénéficie d’un accès adapté PMR, offrant un confort de vie appréciable. Son véritable atout : construite sur un sous-sol total, la maison ne possède aucun mur porteur intérieur, permettant de repenser entièrement l’agencement et de créer un espace de vie moderne et personnalisé. Le terrain constitue une réelle valeur ajoutée : grand jardin familial, possibilité de construire une seconde habitation ou de détacher et revendre une parcelle afin d’aider au coût des travaux. Exposée sud et ouest, la propriété profite d’un bel ensoleillement. Des travaux de rénovation sont à prévoir (électricité, aménagement intérieur, cuisine, salle de bain…). Un bien aux multiples possibilités, alliant projet familial, accessibilité et investissement. Contactez-moi dès maintenant pour organiser une visite. Honoraires d'agence à la charge du vendeur. Information d'affichage énergétique sur ce bien : classe ENERGIE D indice 231 et classe CLIMAT B indice 8. Les informations sur les risques auxquels ce bien est exposé, y compris l'obligation légale de débroussaillement, sont disponibles sur le site Géorisques : http://www.georisques.gouv.fr. La présente annonce immobilière a été rédigée sous la responsabilité éditoriale de M Quentin Neau mandataire indépendant en immobilier (sans détention de fonds), agent commercial de la SAS I@D France immatriculé au RSAC de LAVAL sous le numéro 991314360, titulaire de la carte de démarchage immobilier pour le compte de la société I@D France SAS.
À proximité
Recherche des commodités à proximité...
Détails de l'annonce
Localisation
Ville
Évron
Pays
FR
Diagnostics / Énergie
Diagnostic DPE
231
Diagnostic GES
8
Chauffage et diagnostics
Diagnostic de performance énergétique (DPE)
a
b
c
d
e
f
g
Indice d'émission de gaz à effet de serre (GES)
a
b
c
d
e
f
g
