Trouver...

Language: FR

Devise: EUR

Vente Appartement 3 pièces

Publié le 2 February 2026
Type
Bien immobilier
Tarif
139 999 €
Chambres
2
Salles de bain
0

Vente Appartement 3 pièces

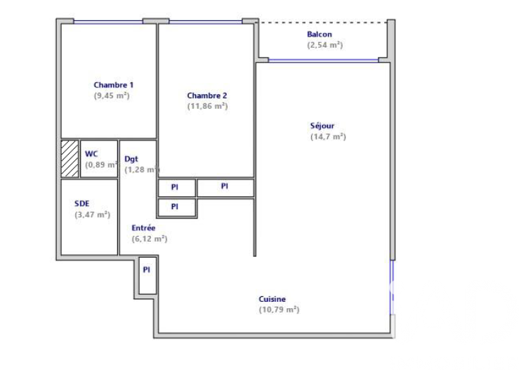
Iad France - Sonia METAIS vous propose : F3 - 2 CHAMBRES - DPE D ! - BALCON - PARKING - CAVE - 5' A PIED DE LA GARE - VUE INCROYABLE ! Situé dans la résidence des Rossays, venez découvrir ce bel appartement sans travaux à la vue incroyable ! Le 1er atout de cet appartement est sa luminosité, et sa vue exceptionnelle ! S'ajoute à cela un état impeccable, permettant de vous projeter sur une installation immédiate : posez vos valises et profitez ! Il est également prêt pour une mise en location si vous avez un projet d'investissement. L'appartement comprend une entrée avec de nombreux rangements, une cuisine équipée ouverte sur le séjour. Le séjour donne directement sur la loggia pour prendre votre café avec la vue sur le Parc de Morsang dès les beaux jours. L'appartement dispose dans la partie nuit, d'une spacieuse salle de douche, de deux chambres dont une avec un grand placard et de WC séparés. Double vitrages posés en 2022 / volets roulants électriques Proches de toutes les commodités ! = un très bon rapport qualité / prix pour le secteur ! Contactez-moi pour vos questions et l'organisation d'un rendez-vous de visite. La presente annonce immobiliere vise 3 lots situés dans une copropriété de 1117 lots au total et ne faisant l'objet d'aucune procédure en cours citée à l'article L. 721-1 du code de la construction et de l'habitation. Montant moyen mensuel de charges déclaré par le vendeur : 300€ par mois (soit 3600 € annuel). Honoraires d'agence à la charge du vendeur. Information d'affichage énergétique sur ce bien : classe ENERGIE D indice 222 et classe CLIMAT D indice 48. Les informations sur les risques auxquels ce bien est exposé, y compris l'obligation légale de débroussaillement, sont disponibles sur le site Géorisques : http://www.georisques.gouv.fr. La présente annonce immobilière a été rédigée sous la responsabilité éditoriale de Mme Sonia METAIS mandataire indépendant en immobilier (sans détention de fonds), agent commercial de la SAS I@D France immatriculé au RSAC de Evry sous le numéro 838473296, titulaire de la carte de démarchage immobilier pour le compte de la société I@D France SAS.

À proximité

Recherche des commodités à proximité...

Détails de l'annonce

Localisation

Ville
Savigny-sur-Orge
Pays
FR

Diagnostics / Énergie

Diagnostic DPE
222
Diagnostic GES
48

Surfaces / Pièces / Composition

Nombre d’étages
14
Étage
13

Chauffage et diagnostics

Diagnostic de performance énergétique (DPE)
a
b
c
d
e
f
g
Indice d'émission de gaz à effet de serre (GES)
a
b
c
d
e
f
g
Rappelez-moi