Trouver...

Language: FR

Devise: EUR

Vente Maison de campagne 7 pièces

Publié le 6 January 2026
Type
Bien immobilier
Tarif
399 000 €
Chambres
5
Salles de bain
0

Vente Maison de campagne 7 pièces

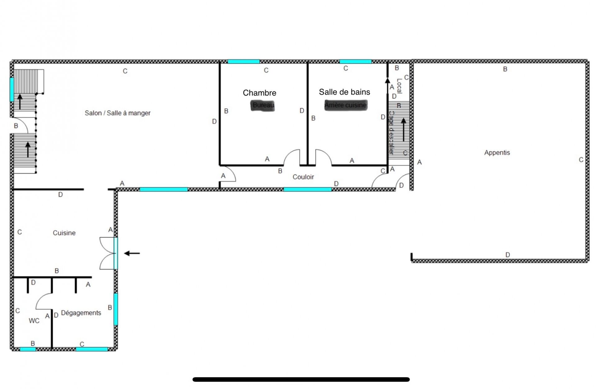
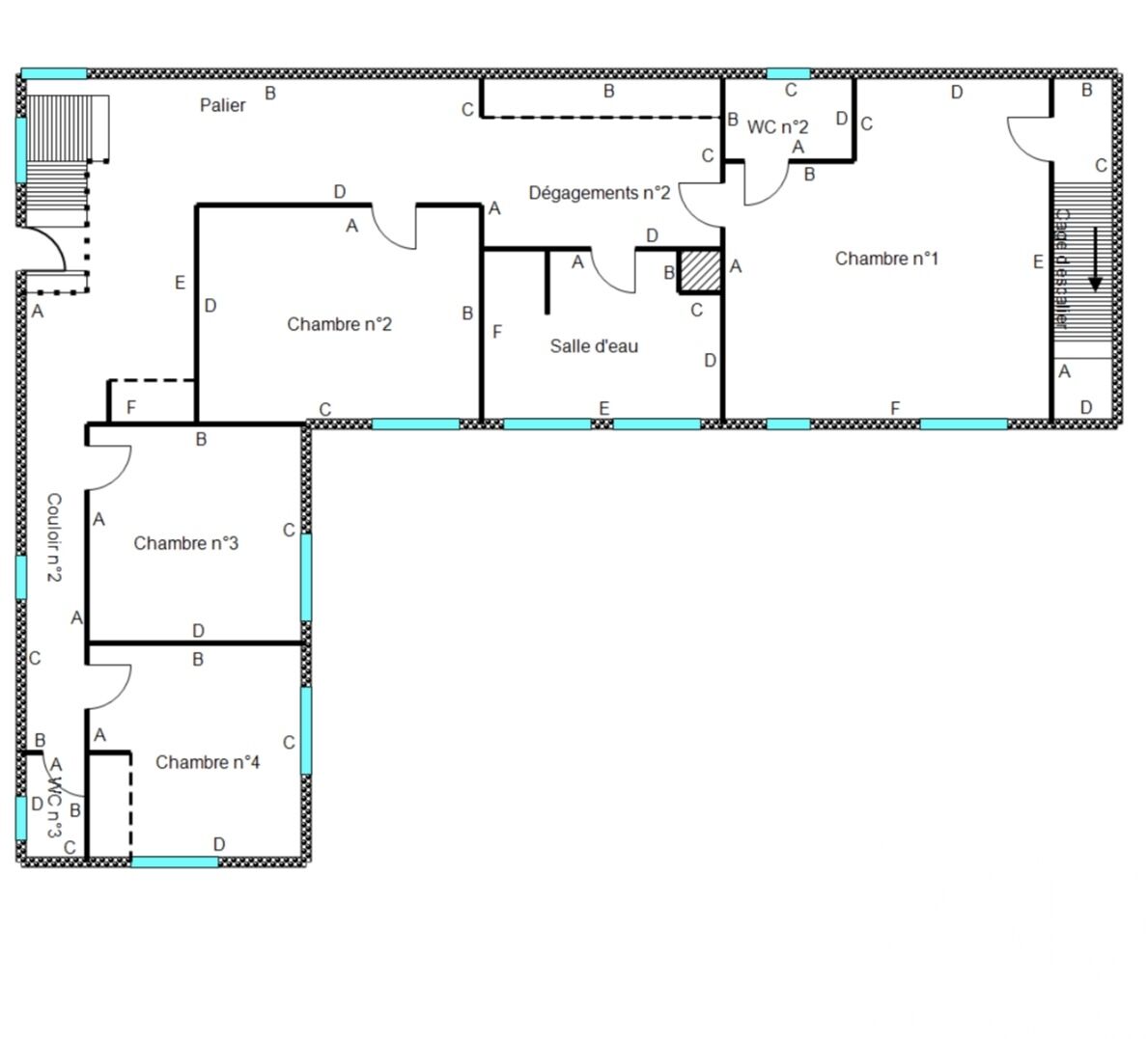
Iad France - Kévin Le Govic vous propose : Maison de Charme Rénovée à Jouy – 2000 m² de Terrain environ – Dépendances Exceptionnelles Coup de cOEur assuré pour cette grande maison de campagne alliant le cachet de l’ancien (poutres, volumes) au confort moderne, située dans un environnement privilégié et sans aucun vis-à-vis. UNE SITUATION IDÉALE Plein cOEur de Jouy : Cadre calme, verdoyant et intimiste. Tout à pied : Centre-bourg, commerces et écoles à 10 minutes. Gare Paris - Montparnasse à 5 minutes en voiture Scolarité facilitée : Ramassage scolaire (collège / lycée) à seulement 50 mètres. DES VOLUMES GÉNÉREUX & LUMINEUX (Exposition Sud-Ouest) Au Rez-de-chaussée : Vaste pièce de vie de 50 m² avec cheminée insert : un espace convivial et chaleureux. Cuisine semi-ouverte aménagée / équipée Espace à personnaliser : Une zone dédiée avec une chambre et une salle de bains à aménager au RDC (idéal pour une vie de plain-pied ou une suite d'invités), ou à exploiter dans l'état actuel pour une activité professionnelle. Buanderie pratique. À l’Étage : 3 très grandes chambres avec de beaux volumes. Suite parentale privée avec dressing, salle de bains et WC privatifs. UN EXTÉRIEUR HORS NORME (Terrain environ 2000 m²) Terrasse couverte de 100 m² : Véritable salon d'été pour recevoir en toute saison. Garage / Atelier de 100 m² : Le paradis des bricoleurs, collectionneurs de voitures ou pour un projet d’activité artisanale. Grande cour d'entrée avec stationnement multiple et jardin arboré. LES PLUS QUI FONT LA DIFFÉRENCE Rénovation de qualité : Fenêtres et volets roulants motorisés récents. Charme authentique : Poutres apparentes conservées. Zéro vis-à-vis : Une tranquillité absolue a deux pas du cOEur de village. Honoraires d'agence à la charge du vendeur. Information d'affichage énergétique sur ce bien : classe ENERGIE E indice 286 et classe CLIMAT B indice 9. Les informations sur les risques auxquels ce bien est exposé, y compris l'obligation légale de débroussaillement, sont disponibles sur le site Géorisques : http://www.georisques.gouv.fr. La présente annonce immobilière a été rédigée sous la responsabilité éditoriale de M Kévin Le Govic mandataire indépendant en immobilier (sans détention de fonds), agent commercial de la SAS I@D France immatriculé au RSAC de CHARTRES sous le numéro 979616398, titulaire de la carte de démarchage immobilier pour le compte de la société I@D France SAS.

À proximité

Recherche des commodités à proximité...

Détails de l'annonce

Localisation

Ville
Jouy
Pays
FR

Diagnostics / Énergie

Diagnostic DPE
251
Diagnostic GES
9

Surfaces / Pièces / Composition

Nombre d’étages
2

Chauffage et diagnostics

Diagnostic de performance énergétique (DPE)
a
b
c
d
e
f
g
Indice d'émission de gaz à effet de serre (GES)
a
b
c
d
e
f
g
Rappelez-moi