Type
Bien immobilierTarif
530 000 €Chambres
2Salles de bain
0Vente Appartement 3 pièces
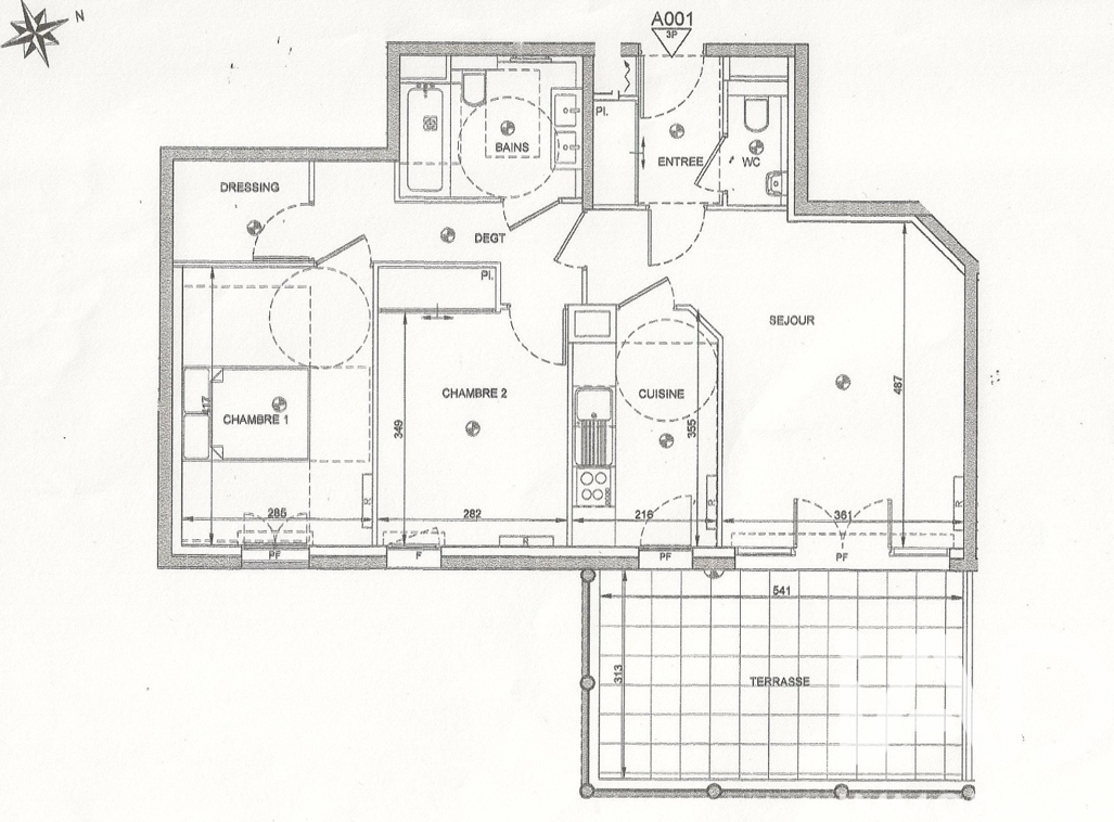
Iad France - Catherine Huriez vous propose : Appartement de standing récent – 3 pièces – Vue Panoramique – Terrasse – Parking – Le Plessis-Robinson Sur les hauteurs recherchées du Plessis-Robinson et au sein d’une résidence de standing livrée en 2025, découvrez ce 3 pièces de 70 m² issu d'une construction récente et jamais occupé, composé d'un séjour lumineux s’ouvrant sur une terrasse de 17 m² exposée sud-est, véritable prolongement de l’espace de vie et offrant une vue dégagée et dominante sur le parc de la Vallée aux Loups. La cuisine, à aménager, peut être ouverte sur le séjour. L'espace nuit comprend une chambre avec rangements, une seconde chambre avec dressing attenant ainsi qu'une salle de bains avec WC. Une entrée avec rangements et des WC indépendants avec lave-mains complètent l’agencement. Une cave et un stationnement en sous-sol sont inclus. Deux places boxables sont disponibles en sus. Idéal pour une vie de famille, l’appartement bénéficie de la sectorisation du groupe scolaire Henri Wallon et se situe à proximité immédiate du lycée Montesquieu. Entre le Parc Henri Sellier et le Parc de la Vallée aux Loups, un bien rare conjuguant standing, lumière et panorama d’exception. La presente annonce immobiliere vise 3 lots situés dans une copropriété de 236 lots au total et ne faisant l'objet d'aucune procédure en cours citée à l'article L. 721-1 du code de la construction et de l'habitation. Montant moyen mensuel de charges déclaré par le vendeur : 200€ par mois (soit 2400 € annuel). Honoraires d'agence à la charge du vendeur. Information d'affichage énergétique sur ce bien : classe ENERGIE C indice 80 et classe CLIMAT C indice 16. Les informations sur les risques auxquels ce bien est exposé, y compris l'obligation légale de débroussaillement, sont disponibles sur le site Géorisques : http://www.georisques.gouv.fr. La présente annonce immobilière a été rédigée sous la responsabilité éditoriale de Mme Catherine Huriez mandataire indépendant en immobilier (sans détention de fonds), agent commercial de la SAS I@D France immatriculé au RSAC de NANTERRE sous le numéro 987887726, titulaire de la carte de démarchage immobilier pour le compte de la société I@D France SAS.
À proximité
Recherche des commodités à proximité...
Détails de l'annonce
Localisation
Ville
Le Plessis-Robinson
Pays
FR
Diagnostics / Énergie
Diagnostic DPE
80
Diagnostic GES
16
Surfaces / Pièces / Composition
Nombre d’étages
4
Étage
3
Chauffage et diagnostics
Diagnostic de performance énergétique (DPE)
a
b
c
d
e
f
g
Indice d'émission de gaz à effet de serre (GES)
a
b
c
d
e
f
g
