Type
Bien immobilierTarif
220 000 €Chambres
5Salles de bain
0Vente Maison/villa 6 pièces
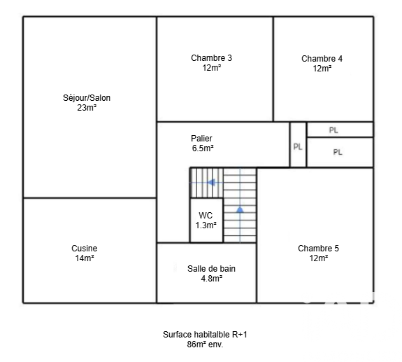
Iad France - Virginie Réthoré vous propose : Maison familiale de 170 m² exploitables, 5 chambres, jardin et garage, à proximité immédiate des écoles et commerces de Rochefort. L’essentiel : Maison des années 1965, sur 2 niveaux, d’environ 120 m² habitables + près de 50 m² de dépendances (garage, buanderie, atelier…). Parcelle de 493 m², jardin clos, bien exposé, entourant la maison. À l’étage : séjour lumineux avec accès balcon, cuisine indépendante, 3 chambres, salle de bains, WC. En rez‑de‑chaussée : 2 chambres supplémentaires, un bureau (idéal télétravail ou activité pro), buanderie, chaufferie, atelier, WC, garage avec accès direct au jardin. Chauffage fioul, cheminée, 2 niveaux, construction 1965. DPE : énergie E (indice 242), climat E (indice 65), audit énergétique disponible, aides à la rénovation envisageables selon profil. On aime : - La vraie marge de manOEuvre : 170 m² exploitables, une structure saine et un potentiel d’évolution réel (famille, mix habitation / pro, locatif partiel ou total). - La configuration modulable permettant de séparer vie privée et activité, accueillir un proche, un ado ou créer un espace indépendant. - Le jardin clos, de belle taille, qui entoure la maison et offre un agréable cadre de vie. - L’emplacement très pratique : espace scolaire Merleau / Grimaux, collège, lycée, centre commercial des 4 Ânes et arrêt de bus accessibles à pied, avec un axe rapide vers La Rochelle. Travaux et potentiel : Oui, des travaux sont à prévoir : mise au goût du jour générale, amélioration énergétique (DPE E), cuisine et salle de bains à repenser. Le prix tient compte de cet état et la maison constitue une base cohérente pour un projet maîtrisé, avec la possibilité de mobiliser des aides à la rénovation (notamment sur le chauffage) sur la base de l’audit énergétique déjà réalisé. Cette maison s’adresse clairement à celles et ceux qui ont envie de penser, transformer et créer plutôt que simplement poser leurs valises dans un décor standardisé. Pourquoi ce bien a du sens aujourd’hui ? - Surface, volumes et terrain difficiles à retrouver à ce niveau de prix sur Rochefort. - Volumes exploitables sans mauvaise surprise structurelle, avec un vrai potentiel de valorisation à moyen terme. - Emplacement du quotidien : écoles, collège, lycée, commerces, bus à pied, accès rapide vers La Rochelle. - Un positionnement de prix ajusté pour laisser de la place à votre projet (familial, mixte, investissement). Mon accompagnement : En tant que conseillère immobilier indépendante iad France à Rochefort, je vous aide à vous projeter concrètement : lecture de l’audit énergétique, pistes d’amélioration, faisabilité de vos idées d’aménagement, explication détaillée de la situation géographique, mise à disposition des éléments factuels & réglementaires, coordination avec les professionnels et le notaire pour sécuriser votre achat. Si vous cherchez un bien avec du fond, du potentiel et une vraie marge de valorisation, je vous invite à venir la découvrir. Contactez‑moi pour échanger sur votre projet et organiser une visite. Honoraires d'agence à la charge de l'acquéreur. Prix honoraires inclus : 220000 euros. Prix hors honoraires : 210000 euros. Honoraires TTC à la charge de l'acquéreur (4,76% du prix du bien hors honoraires) : 10000 euros. Information d'affichage énergétique sur ce bien : classe ENERGIE E indice 242 et classe CLIMAT E indice 65. Les informations sur les risques auxquels ce bien est exposé, y compris l'obligation légale de débroussaillement, sont disponibles sur le site Géorisques : http://www.georisques.gouv.fr. La présente annonce immobilière a été rédigée sous la responsabilité éditoriale de Mme Virginie Réthoré mandataire indépendant en immobilier (sans détention de fonds), agent commercial de la SAS I@D France immatriculé au RSAC de LA ROCHELLE sous le numéro 953285889, titulaire de la carte de démarchage immobilier pour le compte de la société I@D France SAS.
À proximité
Recherche des commodités à proximité...
Détails de l'annonce
Localisation
Ville
Rochefort
Pays
FR
Diagnostics / Énergie
Diagnostic DPE
242
Diagnostic GES
65
Finances / Mandat / Références
Honoraires
10 €
Surfaces / Pièces / Composition
Nombre d’étages
2
Chauffage et diagnostics
Diagnostic de performance énergétique (DPE)
a
b
c
d
e
f
g
Indice d'émission de gaz à effet de serre (GES)
a
b
c
d
e
f
g
