Type
Bien immobilierTarif
477 000 €Chambres
2Salles de bain
0Vente Appartement 3 pièces
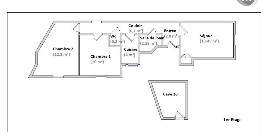
Iad France - Jennifer Gillot vous propose : Paris 12 emplacement exceptionnel à proximité immédiate du métro DAUMESNIL (300m) L 6 / 8, des commerces, des écoles et de la Gare de Lyon. Situé au 1er étage avec ascenseur, dans un bel immeuble au charme de l'ancien. Comprenant une entrée, un séjour, 2 chambres, une cuisine indépendante, un WC et une salle de bain. Une cave complète ce bien. Charme de l'ancien avec les parquets, les moulures, les belles hauteurs sous plafonds et les cheminées. Appartement lumineux, traversant. La presente annonce immobiliere vise 2 lots situés dans une copropriété de 24 lots au total et ne faisant l'objet d'aucune procédure en cours citée à l'article L. 721-1 du code de la construction et de l'habitation. Montant moyen mensuel de charges déclaré par le vendeur : 112.33€ par mois (soit 1348 € annuel). Honoraires d'agence à la charge du vendeur. Information d'affichage énergétique sur ce bien : classe ENERGIE G indice 606 et classe CLIMAT C indice 20. Les informations sur les risques auxquels ce bien est exposé, y compris l'obligation légale de débroussaillement, sont disponibles sur le site Géorisques : http://www.georisques.gouv.fr. La présente annonce immobilière a été rédigée sous la responsabilité éditoriale de Mme Jennifer Gillot mandataire indépendant en immobilier (sans détention de fonds), agent commercial de la SAS I@D France immatriculé au RSAC de EVRY sous le numéro 849317409, titulaire de la carte de démarchage immobilier pour le compte de la société I@D France SAS.
À proximité
Recherche des commodités à proximité...
Détails de l'annonce
Localisation
Ville
Paris
Pays
FR
Diagnostics / Énergie
Diagnostic DPE
606
Diagnostic GES
20
Surfaces / Pièces / Composition
Nombre d’étages
4
Chauffage et diagnostics
Diagnostic de performance énergétique (DPE)
a
b
c
d
e
f
g
Indice d'émission de gaz à effet de serre (GES)
a
b
c
d
e
f
g
