Trouver...

Language: FR

Devise: EUR

Vente Longère 8 pièces

Publié le 11 November 2025
Type
Bien immobilier
Tarif
350 000 €
Chambres
0
Salles de bain
0

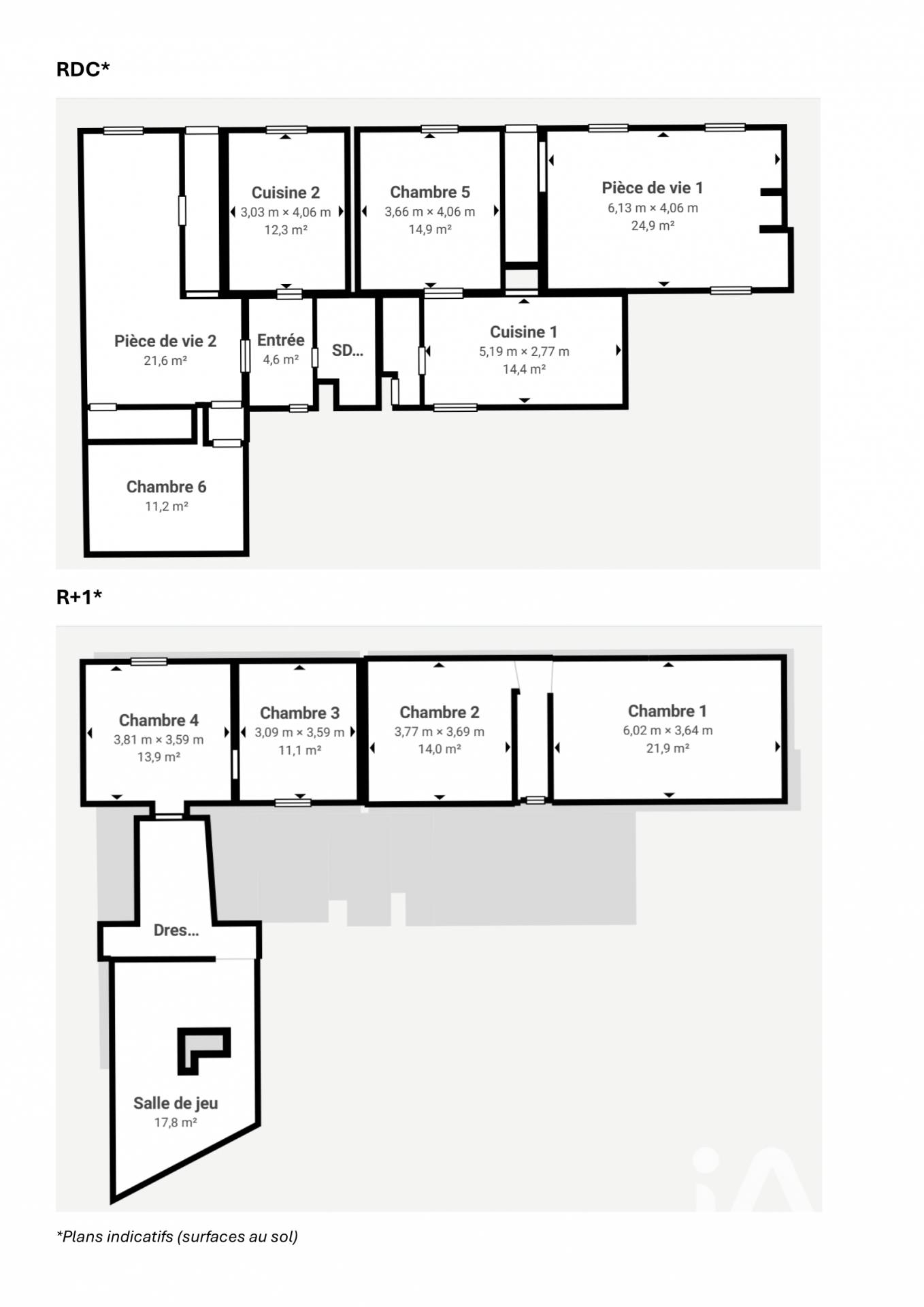
Vente Longère 8 pièces

Iad France - Nicolas Oury vous propose : Pour amoureux de la nature : Flamande traditionnelle avec beaucoup de potentiel. Cette propriété T8 de 180 m² carrez située au calme sur un terrain de 779 m² est actuellement divisée en 2 logements et est entourée de terres agricoles. Sa localisation à 10 minutes à pied de la gare de Fretin vous permettra de vous rendre à la gare de Lille Flandres en 20 minutes en porte à porte. Les 2 logements sont à rénover et peuvent être rassemblés pour ne former qu’une seule habitation ou rester dans cette configuration et procurer un revenu locatif au futur acquéreur. 6 chambres, 2 pièces de vie, 2 cuisines, 2 salles d’eau, 1 dressing et 1 salle de jeu composent cette habitation (cf plans en pièces jointes) L'ensemble bénéficie d’une exposition parfaite avec une terrasse plein sud orientée sur la nature. L’entrée se fait par un portail électrique qui donne sur un parking de 100 m² environ pouvant accueillir 10 véhicules, à cela s’ajoute un garage fermé double et 2 abris de jardin, le tout en excellent état. De nombreuses commodités sont à proximité (train, bus, écoles maternelle et primaire, commerces…). Visite virtuelle MATTERPORT disponible sur demande. Taxe foncière 709 €. Honoraires d'agence à la charge du vendeur. Information d'affichage énergétique sur ce bien : classe ENERGIE F indice 377 et classe CLIMAT E indice 68. Les informations sur les risques auxquels ce bien est exposé, y compris l'obligation légale de débroussaillement, sont disponibles sur le site Géorisques : http://www.georisques.gouv.fr. La présente annonce immobilière a été rédigée sous la responsabilité éditoriale de M Nicolas Oury mandataire indépendant en immobilier (sans détention de fonds), agent commercial de la SAS I@D France immatriculé au RSAC de Lilles sous le numéro 524626751, titulaire de la carte de démarchage immobilier pour le compte de la société I@D France SAS.

À proximité

Recherche des commodités à proximité...

Détails de l'annonce

Localisation

Ville
Fretin
Pays
FR

Diagnostics / Énergie

Diagnostic DPE
377
Diagnostic GES
68

Surfaces / Pièces / Composition

Nombre d’étages
2

Chauffage et diagnostics

Diagnostic de performance énergétique (DPE)
a
b
c
d
e
f
g
Indice d'émission de gaz à effet de serre (GES)
a
b
c
d
e
f
g
Rappelez-moi