Type
Bien immobilierTarif
280 000 €Chambres
3Salles de bain
0Vente Maison de ville 4 pièces
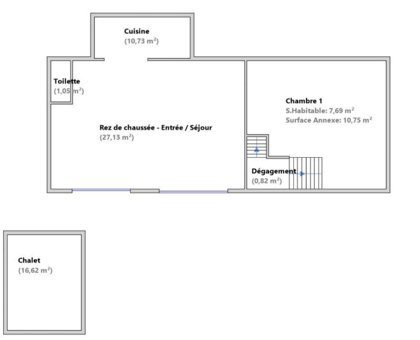
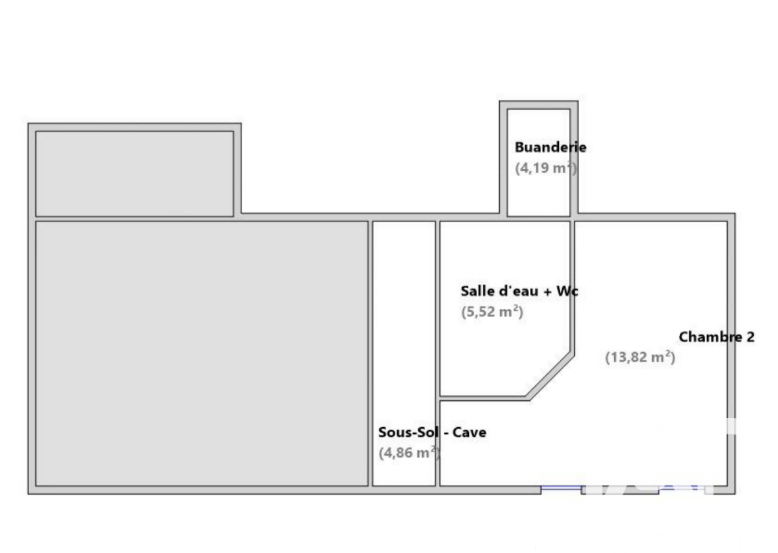
Iad France - Stéphanie Potus vous propose : Idéal primo accédant Au cOEur des pierres dorées à Liergues, voici votre future maison de ville, mitoyenne d’un côté de 95 m² proche des commodités, et au calme. En entrant, vous trouverez une cuisine équipée ouverte sur une belle pièce de vie en rez-de-jardin plein sud, un grand cellier de 11 m² avec accès sur le jardin, ainsi qu'un premier WC avec possibilité de transformation en salle d'eau. À l'étage, vous profiterez de 3 chambres de belles tailles dont 2 avec rangements, une grande salle de bain familiale, ainsi qu'un deuxième WC. La maison est en très bon état et très lumineuse. La petite cour devant la maison, permet également de stationner 2 véhicules. L'environnement est très agréable, au coeur des Pierres dorées. À visiter sans tarder ! Honoraires d'agence à la charge du vendeur. Information d'affichage énergétique sur ce bien : classe ENERGIE B indice 69 et classe CLIMAT A indice 1. Les informations sur les risques auxquels ce bien est exposé, y compris l'obligation légale de débroussaillement, sont disponibles sur le site Géorisques : http://www.georisques.gouv.fr. La présente annonce immobilière a été rédigée sous la responsabilité éditoriale de Mme Stéphanie Potus mandataire indépendant en immobilier (sans détention de fonds), agent commercial de la SAS I@D France immatriculé au RSAC de Lyon sous le numéro 820739209, titulaire de la carte de démarchage immobilier pour le compte de la société I@D France SAS.
À proximité
Recherche des commodités à proximité...
Détails de l'annonce
Localisation
Ville
Porte des Pierres Dorées
Pays
FR
Diagnostics / Énergie
Diagnostic DPE
69
Surfaces / Pièces / Composition
Nombre d’étages
2
Chauffage et diagnostics
Diagnostic de performance énergétique (DPE)
a
b
c
d
e
f
g
Indice d'émission de gaz à effet de serre (GES)
a
b
c
d
e
f
g
